Ház
Origó
HázOrigoval pont a központban

Budapest, XXII.kerület


 

Ingatlan adatai

Irányár: 155 000 000 Ft
Típus: ház
Kategória: eladó
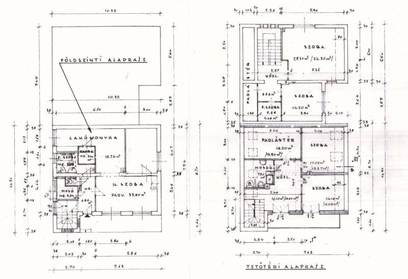
Alapterület: 155 m2
Fűtés: -
Állapota: -
Szobák száma: 5
Építés éve: 2000
Szintek száma: -

Részletes leírás

Fedezze fel álmai otthonát Budapest 22. kerületének szívében, a felkapott Rózsakert városrészben! Ez a tágas, 150 nm-es használt ház ideális választás lehet bárki számára, akik egy modern, kényelmes és JÓL MEGKÖZELÍTHETŐ ingatlant keresnek. 1019 nm-es telek lehetőséget biztosít a szabadban való pihenésre, kertészkedésre, vagy akár egy saját kis zöld oázis kialakítására. Az ingatlan 5 szobával és 2 fürdőszobával rendelkezik, így BŐVEN van hely a család számára, vagy akár barátokkal való közös életre. A ház jó állapotban van, a gáz cirkó fűtés, és napelemes rendszer biztosítja a kellemes hőmérsékletet télen-nyáron egyaránt. Az ingatlan TEHERMENTES, így Ön AZONNAL birtokba veheti. A TÁGAS NAPPALI ideális helyszín baráti összejövetelekhez, családi programokhoz, míg a kertkapcsolatos lakás lehetőséget nyújt a szabadban való pihenésre, élvezve a természet közelségét. A környék ellátottsága KIVÁLÓ, számos bolt, étterem és szolgáltatás található a közelben, így mindennapi szükségleteit könnyedén kielégítheti. Az ingatlan elhelyezkedése miatt a KÖZLEKEDÉS IS KITŰNŐ, hiszen a város tömegközlekedési hálózata GYORSAN és KÉNYELMESEN elérhető, de ha autóval közlekedik, az elektromos autó töltési lehetőségek is rendelkezésre állnak a környéken. A Rózsakert csendes, KERTVÁROSI hangulata ideális választás mindazok számára, akik a NYUGALOMRA és a zöld környezetre vágynak, miközben a város nyújtotta lehetőségek is könnyen elérhetők. A környék biztonságos, ami különösen fontos lehet fiatal felnőttek és családok számára. Ez a kivételes ingatlan nemcsak otthont, hanem életstílust is kínál. Ha KÉRDÉSE van, vagy további információra lenne szüksége, BIZALOMMAL keressen minket. Ne habozzon, hiszen egy ilyen lehetőség gyorsan elkel!

További adatok

Telekterület: 520 m2
Kert mérete: 520 m2
Erkély mérete: 21 m2
Felszereltség: -
Parkolás: -
Kilátás: -
Egyéb extrák:  
-

Hirdető adatai

Hirdető neve: Otthon Centrum
Kapcsolattartó: Tokár József
Hirdető telefonszáma: +36 70 716 9291
Honlap: -