Ház
Origó
HázOrigoval pont a központban

Budapest, IV.kerület


Ady Endre utca 

Ingatlan adatai

Irányár: 97 000 000 Ft
Típus: telek
Kategória: eladó
Alapterület: 218 m2
Fűtés: -
Állapota: -
Szobák száma: -
Építés éve: -
Szintek száma: -

Részletes leírás

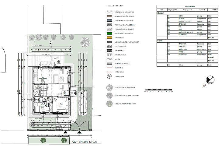
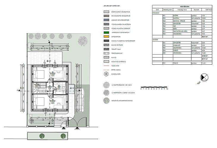
Megyeren, csendes, családiházas övezetben, eladásra kínálunk egy 218 nm-es telket engedélyezett építési tervekkel. A telek per, teher és igénymentes, átadási ideje: azonnal. A telekre egy bruttó 87 nm-es, belső kétszintes, 4 szobás családi ház építhető+autóbeálló. A kerítés teljesen új, illetve megtörtént a ház beton alapzatának kiöntése is. A közelben megtalálható a 122E, a 30-as, 196-os és a 147-es busz megállója. Újpest-központ és az M3-as metróállomás busszal 15 perc alatt megközelíthető. A belváros tömegközlekedéssel és autóval egyaránt rövid időn belül elérhető.A hirdetésben szereplő adatok tájékoztató jellegűek! Egyes ingatlanjaink esetében csere és ingatlanbeszámítás is lehetséges. Továbbá ügyfeleink részére keresünk eladó ingatlant, tulajdonrészt, vagy haszonélvezeti joggal terhelt ingatlant Budapesten és az agglomerációban. A részletekről kérjük érdeklődjön telefonon.Bankfüggetlen hiteltanácsadóink, az ország összes pénzintézete közül gyorsan és gördülékenyen találja meg az Önnek legmegfelelőbb konstrukciót, egyedi, személyre szabott kedvezményekkel.A KÖZVETÍTÉS VEVŐINK RÉSZÉRE DÍJMENTES!

További adatok

Telekterület: 218 m2
Kert mérete: -
Erkély mérete: -
Felszereltség: -
Parkolás: -
Kilátás: -
Egyéb extrák:  
-

Hirdető adatai

Hirdető neve: MPD Hungary Kft.
Kapcsolattartó: IL Quarto Studio Kft.
Hirdető telefonszáma: +36707710951
Honlap: -