Ház
Origó
HázOrigoval pont a központban

Budapest, VIII.kerület


 

Ingatlan adatai

Irányár: 109 900 000 Ft
Típus: lakás (tégla)
Kategória: eladó
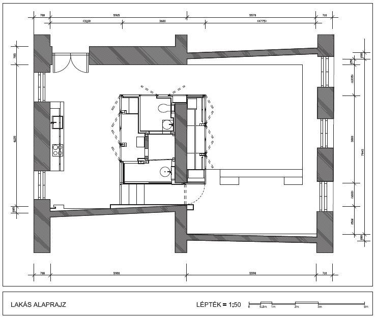
Alapterület: 72 m2
Fűtés: gáz (cirko)
Állapota: -
Szobák száma: 1
Építés éve: 1950
Szintek száma: -

Részletes leírás

ILYEN LAKÁS NINCS MÉG EGY A PIACON!Eladó egy 72 m²-es, teljes körűen felújított, különleges lakás a József körúton!TÁRSASHÁZ:A ház állapota átlagos, klasszikus polgári épület.A közeljövőben felújítási munkálatok indulnak, így az ingatlan értéke várhatóan tovább nő.A lift beépítése is tervben van! A LAKÁS:Alapterület: 72 m²Elrendezés: tágas, egybenyitott tér (eredetileg 2 szobás), exkluzív kialakítássalKonyha: teljesen gépesített, modern beépített megoldásokkalFürdő és WC: külön helyiségben, rejtett designmegoldássalAnyaghasználat: prémium minőségű olasz márvány és fa burkolatok minden helyiségbenA lakást 25 éve vásárolta jelenlegi tulajdonosa, aki belsőépítész bevonásával teljesen újra gondolta az elrendezést.Az ingatlan ez idő alatt projektlakásként funkcionált, és most először kerül piacra!LOKÁCIÓ:A Blaha Lujza tér mindössze 2 perc sétára található.A 4-6-os villamos és a 2-es metró közelsége miatt kiváló a közlekedés, a környéken boltok, éttermek, kávézók és minden fontos szolgáltatás néhány perc alatt elérhető.ÉRDEMES MEGNÉZNI!!Egy különleges, minőségi anyagokkal megvalósított lakás, amely a belsőépítészeti megoldásaival is egyedülálló.Szánjon rá 15 percet, és nézze meg személyesen – érdemes!

További adatok

Telekterület: -
Kert mérete: -
Erkély mérete: -
Felszereltség: -
Parkolás: -
Kilátás: utcai
Egyéb extrák:  
-

Hirdető adatai

Hirdető neve: Otthon Centrum
Kapcsolattartó: Szücs Bátor
Hirdető telefonszáma: +36 70 716 9786
Honlap: -