Ház
Origó
HázOrigoval pont a központban

Pest megye, Gyömrő


 

Ingatlan adatai

Irányár: 80 000 000 Ft
Típus: ház
Kategória: eladó
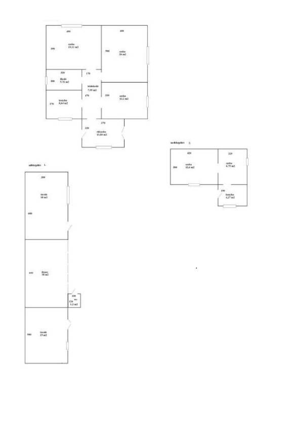
Alapterület: 101 m2
Fűtés: elektromos
Állapota: -
Szobák száma: 3
Építés éve: 1985
Szintek száma: -

Részletes leírás

Vidéki nyugalom a főváros közelében – Gyömrőn eladó felújított családi ház nagy telekkel! Eladó Gyömrőn ez a 100 m²-es, önálló családi ház, hatalmas, 1360 m²-es telekkel – ahol a tágas tér, a friss levegő és a vidéki élet nyugalma várja új tulajdonosát!A telken ráadásul egy különálló, 43 m²-es kis ház is található – tökéletes két generáció együttélésére, vendégháznak vagy akár kiadásra is.A fő ház elrendezése ideális:- tágas előszoba- 3 különnyíló szoba- konyha-étkező- fürdőszobaA tetőtér beépíthető, így a lakótér még tovább bővíthető!Felújítások 2024-ben:- teljesen új tetőszerkezet Bramac cseréppel- műanyag nyílászárók- új elektromos és vízvezeték-hálózat- új Ariston villanybojler- elektromos padlófűtés + két hangulatos cserépkályhaA kis házban szoba és konyha található, de fürdőszoba kialakítása is lehetséges – ideális külön lakrészként vagy irodának.A hatalmas telek igazi kincs:- helyet ad medencének, kerti sütögetésnek, gyerekjátszónak, sőt akár önellátó gazdálkodásra is alkalmas!Szőlő, termő gyümölcsfák, állattartásra kialakított ólak, pince és füstölő is található a telken.A gyűrűskút biztosítja a kerti növények öntözését.Iskola, óvoda 10 percen belül, vasútállomás 15 perc sétára – a belváros mégis könnyen elérhető.Ne maradjon le erről a lehetőségről!További információért és megtekintésért várom hívását!

További adatok

Telekterület: 1 360 m2
Kert mérete: 1 360 m2
Erkély mérete: 8 m2
Felszereltség: -
Parkolás: -
Kilátás: -
Egyéb extrák:  
-

Hirdető adatai

Hirdető neve: Otthon Centrum
Kapcsolattartó: Gallai Adrienn
Hirdető telefonszáma: +36 70 388 5686
Honlap: -