Ház
Origó
HázOrigoval pont a központban

Pest megye, Gödöllő


 

Ingatlan adatai

Irányár: 325 000 000 Ft
Típus: kereskedelmi/ipari ingatlan
Kategória: eladó
Alapterület: 760 m2
Fűtés: -
Állapota: -
Szobák száma: -
Építés éve: 2025
Szintek száma: -

Részletes leírás

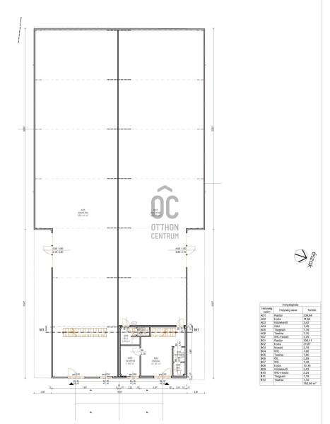
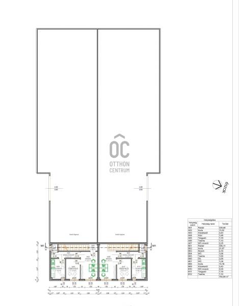
Gödöllőn, kiváló megközelíthetőséggel – az M31 felhajtó közvetlen közelében, az M0-tól mindössze 10 km-re – 1620 m²-es, összközműves telken elhelyezkedő, 750 m²-es acélszerkezetes, szendvicspanel (PIR) ipari csarnok eladó.Az épület két, egymástól teljesen függetlenül használható egységre oszlik („A” és „B” rész), amelyek külön bejárattal, saját telekrésszel, valamint külön víz- és áramellátással rendelkeznek. Így akár két cég is önállóan, zavartalanul működhet – átfedés, egymáson keresztüljárás vagy rezsiköltség-vita nélkül.Műszaki adatok:Ereszmagasság: 5,65 mGerincmagasság: 6,34 mTeljesen körbekerített telek2 db 6,5 m-es ipari úszókapu2 db kamion behajtóViacolor burkolatú út és parkoló***Az ingatlan igény szerint egyben vagy külön is megvásárolható.***„A” egység – 372 m²Raktár: 300 m²Irodák:Földszint: 36 m²Galéria: 36 m²Szociális helyiségek: WC, zuhanyzó, öltöző, teakonyhaSaját telekrész: 456 m²„B” egység – 378 m²Raktár: 306 m²Irodák:Földszint: 39 m²Galéria: 33 m²Szociális helyiségek: WC, zuhanyzó, öltöző, teakonyhaSaját telekrész: 456 m²Irányár: 325.000.000 Ft + ÁFATovábbi információért keressen a hét bármely napján!

További adatok

Telekterület: -
Kert mérete: -
Erkély mérete: -
Felszereltség: -
Parkolás: -
Kilátás: -
Egyéb extrák:  
-

Hirdető adatai

Hirdető neve: Otthon Centrum
Kapcsolattartó: Katona Mátyás
Hirdető telefonszáma: +36 70 469 3036
Honlap: -