Ház
Origó
HázOrigoval pont a központban

Budapest, VIII.kerület


 

Ingatlan adatai

Irányár: 1 075 772 500 Ft
Típus: kereskedelmi/ipari ingatlan
Kategória: eladó
Alapterület: 2 020 m2
Fűtés: -
Állapota: -
Szobák száma: -
Építés éve: -
Szintek száma: -

Részletes leírás

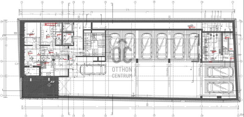
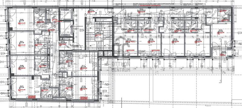
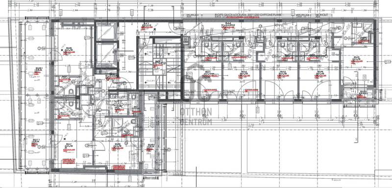
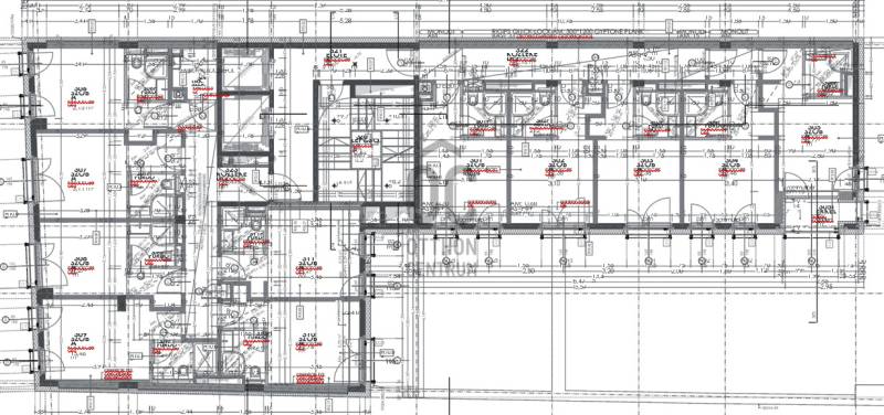
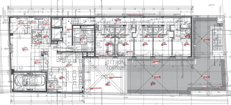
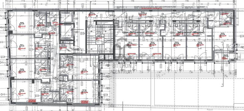
Budapest VIII kerület csodálatosan megújult Corvin negyed városrészében, pár lépés távolságra a Corvin Plázától eladó egy teljes mértékben megépült épület váz.Az ingatlan 68 szobás szállodára kapott építési engedélyt, amely a kor kívánalmai szerint lett kialakítva.Az épület befejezésre, vagy akár lakóház céljára történő átépítésre vár.Kialakítsa szerint, garázsszint + földszint + 6 emelet kialakítású.Telek: 505nmGarázsszint 430nm 19 autó elhelyezési lehetőséggelFöldszint: Lobbi + 60nm üzlet terület + 5 vendégszoba + 90nm kerthelyiség1-5 emelet: emeletenként 11db 16-18nm nagyságú szoba6 emelet: 8 szoba melyből 3 szoba nagy, panorámás terasszal rendelkezik.Az épületbe 2db nagyméretű lift beépítése lehetséges, a szobák központi hűtő-fűtő berendezésekkel, a kor követelményei szerinti okosmegoldásokkal lett tervezve és ennek megfelelően előkészítve.Ha szeretne egy kiváló lokációban lévő, könnyen befejezhető szállodai projektet, kellő szobaszámmal, akkor ez a lehetőség kihagyhatatlan az Ön számára!

További adatok

Telekterület: -
Kert mérete: -
Erkély mérete: -
Felszereltség: -
Parkolás: -
Kilátás: -
Egyéb extrák:  
-

Hirdető adatai

Hirdető neve: Otthon Centrum
Kapcsolattartó: Demeter András
Hirdető telefonszáma: +36 70 716 9611
Honlap: -