Ház
Origó
HázOrigoval pont a központban

Pest megye, Szigetszentmiklós


 

Ingatlan adatai

Irányár: 129 900 000 Ft
Típus: ház
Kategória: eladó
Alapterület: 133 m2
Fűtés: -
Állapota: új
Szobák száma: 5
Építés éve: 2026
Szintek száma: -

Részletes leírás

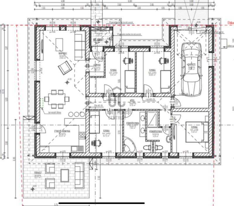
Szigetszentmiklóson garázsos családi ház- központi elhelyezkedésű- téglaépítésű (főfalak: 30-as tégla, válaszfalak: 10-es tégla)- Nettó 130,44 m2-es- garázsos- nappali + 4 hálószoba- két fürdőszoba (egy kádas és egy zuhanyzós)- fűtés: hőszivattyús padlófűtés az egész házban - választható burkolatok- járdák, autóbehajtók, ház körüli járdák térkővel lerakva- riasztó rendszer kiépítve: nyitás + mozgásérzékelők- nappaliban 3,5 kw-os klíma- elektromos kapu és garázsajtó- 3 rétegű műanyag ablakok- redőny- szúnyogháló- nagy ablakokra elektromos redőny- terasz burkolás benne van az árban- 15 cm-es külső szigetelés- fa födémszerkezet, 30-as tetőszigetelés- 12,5 mm-es gipszkarton álmennyezet- betoncserép tetőfedés- színezett ereszcsatorna- Nem bucka!!

További adatok

Telekterület: 700 m2
Kert mérete: 700 m2
Erkély mérete: 24 m2
Felszereltség: -
Parkolás: -
Kilátás: -
Egyéb extrák:  
-

Hirdető adatai

Hirdető neve: Otthon Centrum
Kapcsolattartó: Andreopulos Niki
Hirdető telefonszáma: +36 70 716 8706
Honlap: -