Ház
Origó
HázOrigoval pont a központban

Pest megye, Budajenő


 

Ingatlan adatai

Irányár: 143 000 000 Ft
Típus: ház
Kategória: eladó
Alapterület: 139 m2
Fűtés: -
Állapota: új
Szobák száma: 4
Építés éve: 2026
Szintek száma: -

Részletes leírás

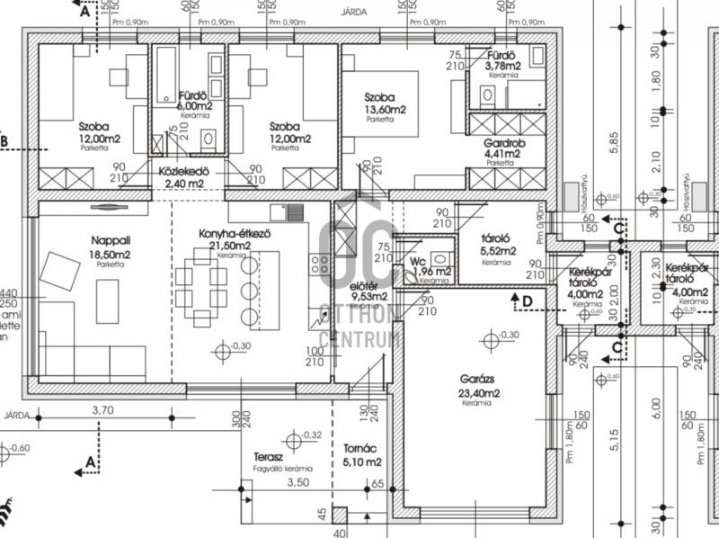
***Épülő prémium ikerházfél Budajenőn, a Templomvölgy Villaparkban***Kivételes lehetőség a természet ölelésében – mindössze 25 percre Budapesttől!Budajenő egyik legszebb, legkedveltebb részén, a Templomvölgy Villaparkban kínálunk eladásra egy magas minőségű, modern ikerházfelet, melyet gondos, helyi kivitelező épít prémium anyagokból és korszerű technológiákkal.A másik ikerházfél szintén elérhető, így akár összeköltöző családoknak, rokonoknak vagy barátoknak is ideális választás lehet.A két lakás csak a tárolók falánál kapcsolódik, így teljes intimitás és privát kert biztosított mindkét tulajdonos számára.***A környéket zöld dombok és hegyek ölelik, a levegő tiszta, a hangulat nyugodt – igazi vidéki életérzés, kompromisszumok nélkül.A lakópark családbarát környezetben helyezkedik el: modern játszótér, sétálóutcák, kerékpárutak és természetközeli kirándulóhelyek teszik igazán élhetővé.A településen óvoda, iskola, bolt és étterem is található, míg a közeli Telkiben és Pátyon minden további szolgáltatás elérhető.***Az ikerházfél főbb jellemzői:-Modern, energiatakarékos otthon padlófűtéssel és hőszivattyúval-Prémium VEKA 3 rétegű nyílászárók, motoros antracit redőnyök és szúnyoghálók-Padlófűtés helyiségenkénti termosztáttal-15 cm homlokzati és 25 cm födémszigetelés – kiváló hőmegtartás-10 000 Ft/m²-ig választható hideg- és melegburkolatok-Modern fürdőszobák beépített zuhannyal, 100 000 Ft/db értékhatárig választható szaniterekkel-Homlokzattal egyező kerítés, elektromos nagykapu és kiskapu-Térkövezett bejáró és autóbeálló, öntözőrendszerrel és gyepszőnyeggel kialakított privát udvar⚙️ Műszaki tartalom röviden:-3×16A elektromos rendszer minden helyiségben: lámpa, konnektor, TV és internet kiállásokkal-Külső világítás, riasztó és klíma előkészítés-200 literes indirekt víztároló, padlófűtés minden helyiségben-15 cm EPS + XPS hőszigetelés, 25 cm fújt purhab födémszigetelés-120 000 Ft/db értékhatárig választható beltéri ajtók***Külső környezet:-Új játszótér és parkosított közösségi tér a villaparkon belül-1 m széles térkő járda, gépkocsi beálló, kavicságy a ház körül-Zsalukő kerítés modern antracit alumínium elemekkel-Automata öntözőrendszerrel ellátott, gyepesített privát kert****Teljes kulcsrakész vételár garázzsal és tárolóval együtt 163 000 000 Ft / ikerházfél***Helyszín: Budajenő, Templomvölgy VillaparkReferenciák megtekinthetők a környéken – helyi, megbízható kivitelezőtől!***Amennyiben Ön is beleszeretett ebbe a környezetbe, hívjon bizalommal!A környéken a hasonló minőségű ingatlanok gyorsan elkelnek, ne maradjon le erről a lehetőségről!

További adatok

Telekterület: 600 m2
Kert mérete: 600 m2
Erkély mérete: -
Felszereltség: -
Parkolás: -
Kilátás: -
Egyéb extrák:  
-

Hirdető adatai

Hirdető neve: Otthon Centrum
Kapcsolattartó: Bíró Evelin
Hirdető telefonszáma: +36 70 469 3066
Honlap: -