Ház
Origó
HázOrigoval pont a központban

Budapest, XI.kerület


 

Ingatlan adatai

Irányár: 169 900 000 Ft
Típus: lakás (tégla)
Kategória: eladó
Alapterület: 114 m2
Fűtés: -
Állapota: -
Szobák száma: 4
Építés éve: 1980
Szintek száma: -

Részletes leírás

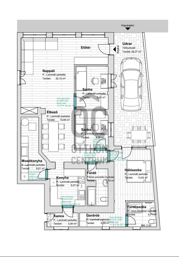
Eladó a Budapest XI. kerületben, Sasadon, csendes mellékutcában egy tejleskörűen felújított nettó 114 m2-es, földszinti, 4 szobás társsasházi lakás. A lakásba külön bejáraton, a saját térkövezett, 27 m2-es udvaron át lehet bejutni automatizált nagykapun. Ezt a burkolt kertrészt gépkocsi beállónak lehet használni, de alkalmas terasznak is. Az ingatlan előtér, nappali-étkező- konyha, három szoba, gardrób, kettő fürdőszoba, háztartási helyiség valamint közlekedőből áll. A korszerű igényeknek megfelelően biztonsági ajtó, szigetelő műanyag nyílászárók, hőszivattyús fűtés, légkondicionáló, szigetelt alap, falak és födém. A kamrán keresztül a közös tárolóba, onnan a közös kertbe lehet kijutni. Az ingatlan megközelítése, közlekedés kifejezetten jó. Gépkocsival, de akár gyalogosan is az M7 autópálya és az ott található tömegközlekedés megállók pár perc, 8E, 53-as, 139-es,150-es, 154-es busz valamint éjszakai járatok. Sétatávolságra bevásárlási lehetőségek, iskola, óvoda, egészségügyi intézmények, egyéb szolgáltatások.

További adatok

Telekterület: -
Kert mérete: -
Erkély mérete: -
Felszereltség: -
Parkolás: -
Kilátás: utcai
Egyéb extrák:  
-

Hirdető adatai

Hirdető neve: Otthon Centrum
Kapcsolattartó: Majkuth Zsuzsanna
Hirdető telefonszáma: +36 70 461 9941
Honlap: -