Ház
Origó
HázOrigoval pont a központban

Budapest, XXII.kerület


 

Ingatlan adatai

Irányár: 249 900 000 Ft
Típus: kereskedelmi/ipari ingatlan
Kategória: eladó
Alapterület: 450 m2
Fűtés: -
Állapota: -
Szobák száma: -
Építés éve: 1979
Szintek száma: -

Részletes leírás

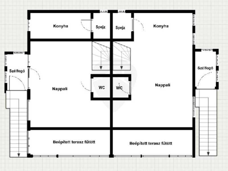
Budafok: Háromszintes, Multifunkcionális Épület a Campona Közelében.Kivételes befektetési és cégközponti lehetőség Budafok egyik frekventált területén! Eladásra kínálunk egy impozáns, háromszintes épületet, amely ideális elhelyezkedésének és hatalmas méretének köszönhetően számtalan üzleti funkcióra alkalmas.Az 531 négyzetméteres saroktelken elhelyezkedő 450 négyzetméteres épület kialakítása révén jelenleg három különálló egységből áll. A földszint szolgáltató egységként funkcionál, míg az emeleti szintek két különálló lakásnak adnak otthont.A saroktelek előnye, hogy az épület két külön bejárattal is rendelkezik, ami megkönnyíti a funkciók elkülönítését és a többcélú hasznosítást. Mérete, elhelyezkedése és kialakítása révén kiválóan alkalmas cégközpontnak, modern irodaháznak, magánklinikának, szépségészeti stúdiónak vagy akár több generációs családi otthonnak, ahol az üzleti élet és a magánélet egy fedél alatt, mégis szeparáltan valósul meg.Ez az ingatlan a nagyság és a sokoldalúság tökéletes kombinációja.Ragadja meg a lehetőséget! Hívjon bizalommal a részletekért és a megtekintés egyeztetése céljából!

További adatok

Telekterület: -
Kert mérete: -
Erkély mérete: -
Felszereltség: -
Parkolás: -
Kilátás: -
Egyéb extrák:  
-

Hirdető adatai

Hirdető neve: Rock Home
Kapcsolattartó: Németi-Loósz Henriett
Hirdető telefonszáma: +36 70 412 5641
Honlap: -