Ház
Origó
HázOrigoval pont a központban

Fejér megye, Szabadbattyán


 

Ingatlan adatai

Irányár: 48 600 000 Ft
Típus: telek
Kategória: eladó
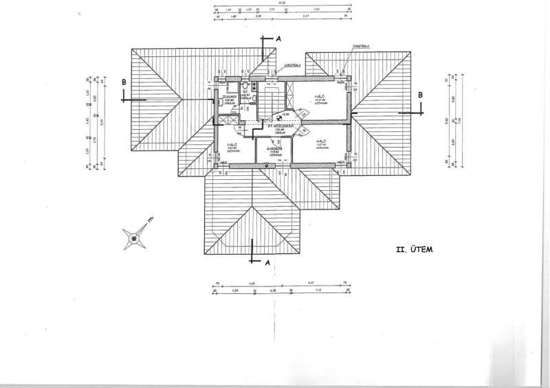
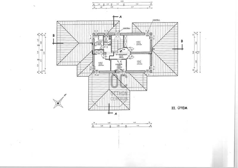
Alapterület: 900 m2
Fűtés: -
Állapota: -
Szobák száma: -
Építés éve: -
Szintek száma: -

Részletes leírás

Eladásra kínálok Szabadbattyán központjában, egy megkezdett építkezést, a falak födémig készen vannak.A megálmodott 202 nm-es mediterrán és luxus kivitelű ház megvalósítása új tulajdonosára vár.A tervek szerint egy család számára, minden igényt kielégítő, meghitt, tágas otthont alkothat.A telek mérete 900 nm, mely elengendő teret biztosít pihenésre, egy kis kertészkedésre.Természetesen a terv dokumentációk rendelkezésre állnak, azonban újra kell engedélyeztetni.Közművek közül az áram bekötve, 3x16 A, a gázcsonk beállás telken belül. Az udvaron pedig egy fúrt kút.Kiváló elhelyezkedés, 5-8 perc sétával minden fontos intézmény, orvos, iskola, bevásárlási lehetőség és különböző szolgáltatás elérhető.Székesfehérvár 5 km-re , autóval az M7 felhajtó 3 percre.Jöjjön és nézzük meg együtt!Ha bármi kérdése van az ingatlannal kapcsolatban vagy az Ön ingatlanát el kell adni a vásárláshoz, hívjon bizalommal.

További adatok

Telekterület: 900 m2
Kert mérete: -
Erkély mérete: -
Felszereltség: -
Parkolás: -
Kilátás: -
Egyéb extrák:  
-

Hirdető adatai

Hirdető neve: Otthon Centrum
Kapcsolattartó: Dusnoki Éva
Hirdető telefonszáma: +36 70 461 9031
Honlap: -