Ház
Origó
HázOrigoval pont a központban

Tolna megye, Tolna


 

Ingatlan adatai

Irányár: 44 900 000 Ft
Típus: ház
Kategória: eladó
Alapterület: 167 m2
Fűtés: gáz (konvektor)
Állapota: -
Szobák száma: 6
Építés éve: 1982
Szintek száma: -

Részletes leírás

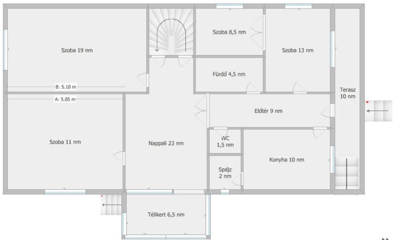
Tolna vármegye, Tolnán eladásra kínálok egy 1982-ben épült 167 m2-es jó állapotú, tégla építésű, 3 szintes családi házat. Az ingatlan a város közkedvelt részén, családi házas zöldövezetben található. A közelben megtalálható, iskola, óvoda, boltok, üzletek stb. 6 -os főút 500 m-re, az M6-os autópálya 2 km-re van. A ház egy 813 m2-es sík telken áll, melyen egy 25 m2-es külön álló garázs, valamint egy 70 m2-es melléképület / 20 m2-es garázs, műhely, tároló / épült. Az ingatlan minden közművel rendelkezik, ipari áram is bekötve!A ház nappalija klimatizált! Földszint: - 4 szoba + nappali - konyha - fürdő, külön WC - télikert - előtér Emelet: - 2 szoba - fürdőszoba - előtér - konyha Alagsor: - kazánház - tárolókA családi ház nagyon jó térelosztású, az alsó és felső szint különálló lakásként is használható. A sok nagy ablaknak köszönhetően a ház világos, hangulatos. A válaszfalak áthelyezésével átalakíthatók a helyiségek.A földszinten lévő összes nyílászárót, hőszigetelt, redőnyös, szúnyoghálósra cserélték. A tető, ereszcsatorna és a földszinti fürdőszoba felújítása is megtörtént. A ház melegéről egy új, vegyes tüzelésű kazán radiátor hőleadókkal, valamint gázkonvektorok gondoskodnak, de 2 kandallóval is fűthetünk, melyek tovább növelik a komfortérzetet.Az ingatlan csendes, nyugodt, biztonságos környéken, kis forgalmú utcában van, a szomszédok barátságosak. Ajánlom többgyermekes családoknak és több generációs családoknak egyaránt!Teljes körű pénzügyi megoldások ügyintézése díjmentesen.Minden élethelyzetre végzünk pénzügyi elemzést, ha vásárolni szeretne segítünk, hogy ezt a legjobb feltételek mellett tegye, ha eladni szeretné ingatlanát nézzük meg, hátha érdemes meglévő hitelét átváltani. Ha szeretné megtekinteni, hívjon és megmutatom!Keressen bizalommal, szakértők vagyunk!Reg.szám: H509440

További adatok

Telekterület: 813 m2
Kert mérete: 813 m2
Erkély mérete: -
Felszereltség: -
Parkolás: -
Kilátás: -
Egyéb extrák:  
-

Hirdető adatai

Hirdető neve: Otthon Centrum
Kapcsolattartó: Cseh Gábor
Hirdető telefonszáma: +36 70 469 3536
Honlap: -