Ház
Origó
HázOrigoval pont a központban

Budapest, XVIII.kerület


 

Ingatlan adatai

Irányár: 79 900 000 Ft
Típus: ház
Kategória: eladó
Alapterület: 88 m2
Fűtés: gáz (cirko)
Állapota: -
Szobák száma: 4
Építés éve: 1966
Szintek száma: -

Részletes leírás

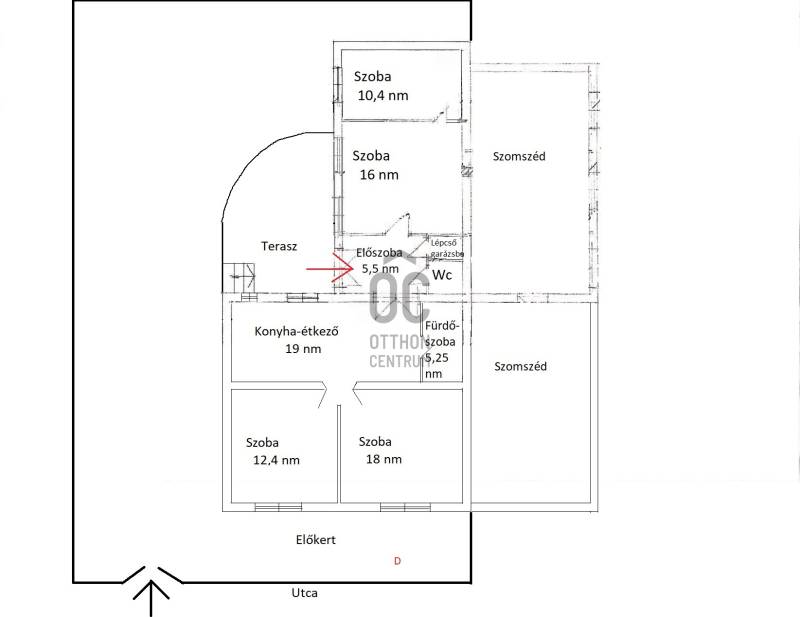
XVIII. kerületben a Béke tér környékén csendes mellékutcában, de kiváló közlekedéssel kínálunk megvásárlásra egy földszintes kialakítású ikerház felet. Klasszikus ikerház, a telek középen kerítéssel elválasztva, önálló utcai bejárat mindkét ikerfél lakói számára. A ház tégla építésű, cserép fedéses, belső elosztása tágas és kényelmes. A fedett teraszról nyílik a bejárat, egy jó méretű előszobából jutunk be a nagy méretű konyha-étkezőbe, innen két déli tájolású, világos szobát találunk, továbbá egy jó állapotú fürdőszoba, egy külön mellékhelyiség és egy belső lépcsőház is helyet kapott, innen közvetlenül juthatunk le a szuterén szinten lévő nagy garázsba. A házban kialakításra került még két szoba. A fűtést gázcirkó biztosítja, nyáron a kellemes hőmérsékletről klíma gondoskodik. A telek 303 nm, csatorna utcáról beköthető (a tulajdonosok elkezdték a hivatalos ügyintézést, folyamatban van a bekötés, ami több hónap is lehet). Telken belül több autóval is parkolhatunk, a garázsban további egy autó elfér, illetve van hely tárolásra is. A ház mögött egy kerti tároló is kialakításra került szerszámoknak, sporteszközöknek. Az utcai kapu elektromos. Csendes, családi házas mellékutca, a közelben (6 perc séta) több buszmegálló is megtalálható: 166, 236, 266, vonatállomás 5 perc séta, iskola, bevásárlási lehetőség, posta 5-10 percen belül gyalogosan elérhetők. Az ingatlan jogi háttere rendezett, rövid időn belül birtokba vehető.

További adatok

Telekterület: 304 m2
Kert mérete: 304 m2
Erkély mérete: 10 m2
Felszereltség: -
Parkolás: -
Kilátás: -
Egyéb extrák:  
-

Hirdető adatai

Hirdető neve: Otthon Centrum
Kapcsolattartó: Sipos Zoltánné
Hirdető telefonszáma: +36 70 469 3031
Honlap: -