Ház
Origó
HázOrigoval pont a központban

Budapest, XXIII.kerület


 

Ingatlan adatai

Irányár: 124 990 000 Ft
Típus: iroda
Kategória: eladó
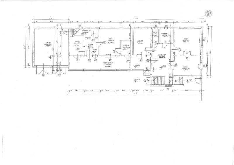
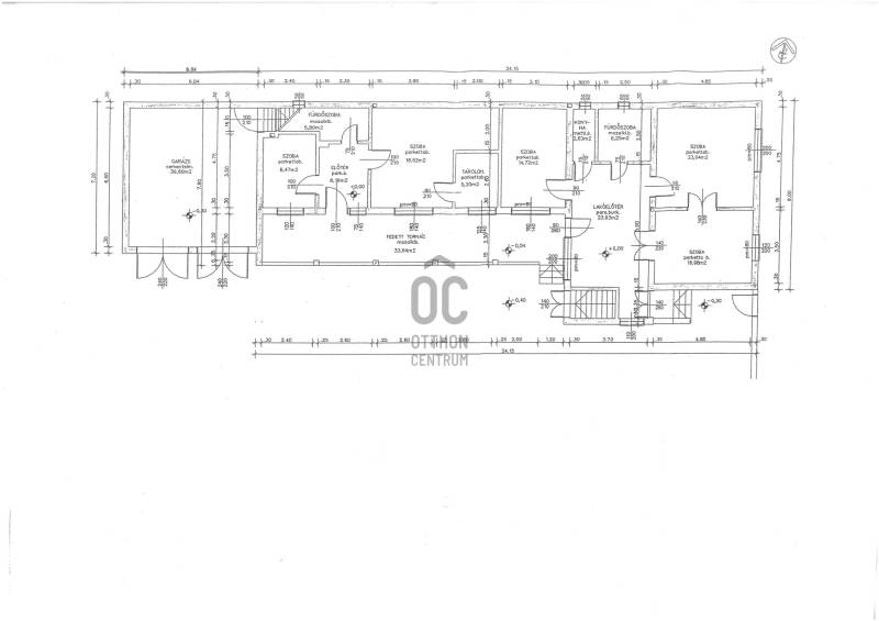
Alapterület: 306 m2
Fűtés: -
Állapota: -
Szobák száma: -
Építés éve: 1955
Szintek száma: -

Részletes leírás

Az ingatlanpiac dinamikus fejlődése és a kereskedelmi lehetőségek bővülése előtt álló vállalkozások számára kiemelkedő ajánlatot kínálunk Budapest 23. kerületében, Soroksáron. Az ingatlan, amely jelenleg iroda és raktározási funkcióval rendelkezik, ideális választás lehet azon cégek számára, akik szeretnék bővíteni tevékenységüket vagy új helyszínt keresnek üzleti céljaik megvalósításához. Az ingatlan két szintes, melyből a földszinti nettó alapterülete 218 nm, a telek pedig mérete 797 nm, amely lehetőséget biztosít a további fejlesztésekre is. A környék adottságai rendkívül kedvezőek, hiszen Soroksár jól megközelíthető terület, amely ideális helyszín a vállalkozások számára. Közlekedés szempontjából az ingatlan könnyen elérhető autóval, hiszen a közeli főbb közlekedési utak biztosítják a gyors hozzáférést a város többi részéhez, ugyanakkor pár perc alatt elérhető az M0-s autóút és az M5-ös autópálya is. Emellett a tömegközlekedési lehetőségek is kedvezőek, így a munkavállalók számára is egyszerűen megközelíthető a helyszín, legyen szó buszjáratokról vagy a közeli HÉV megállóról. Az ingatlan lehetőséget ad arra, hogy a jövőbeli bérlők vagy vásárlók saját igényeik szerint alakítsák ki a tér használatát. A jelenlegi funkciója, mint iroda és alkatrészraktár, tökéletesen illeszkedik a modern üzleti igényekhez, de a helyszín más funkciókra is könnyen átalakítható, például üzlethelyiségként való hasznosításra, így maximálisan kihasználható a benne rejlő potenciál.A közelben található üzletek, szolgáltatások és éttermek mind hozzájárulnak ahhoz, hogy a vállalkozások számára ideális környezetet biztosítsanak. A zöld területek és a családias atmoszféra pedig tovább növeli a környék vonzerejét. Amennyiben Ön is kereskedelmi célú ingatlanban gondolkodik, és szeretne többet megtudni erről a remek lehetőségről, ne habozzon! Bármilyen kérdése van az ingatlannal vagy a környezettel kapcsolatban, bizalommal kereshet minket. Az Ön sikeres üzleti vállalkozásának támogatása érdekében állunk rendelkezésére, hogy minden részletet megosszunk Önnel. Az ingatlan piaca folyamatosan változik, ezért érdemes mihamarabb lépni, hogy ne maradjon le erről a kivételes ajánlatról!

További adatok

Telekterület: -
Kert mérete: -
Erkély mérete: -
Felszereltség: -
Parkolás: -
Kilátás: -
Egyéb extrák:  
-

Hirdető adatai

Hirdető neve: Otthon Centrum
Kapcsolattartó: Solt Péter
Hirdető telefonszáma: +36 70 716 8101
Honlap: -