Ház
Origó
HázOrigoval pont a központban

Tolna megye, Paks


 

Ingatlan adatai

Irányár: 29 900 000 Ft
Típus: ház
Kategória: eladó
Alapterület: 80 m2
Fűtés: elektromos
Állapota: felújítást igényel
Szobák száma: 3
Építés éve: 1957
Szintek száma: -

Részletes leírás

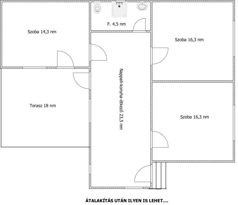
Paks kertvárosi részén tégla falazatú családi ház eladó.Az ideális helyszínt keresi új otthonához? Vagy több ingatlan felépítésében gondolkodik?Ezt az ingatlant látnia kell!Főbb jellemzők:-azonnal birtokba vehető -családiházas környék-csendes utca, barátságos szomszédok-felújítandó téglaépítésű ház (80 nm)-kitűnően alakítható, változtatható -szép nagy udvar melléképületekkel-ha társasházban gondolkodna, érdemes tudni:-Lk.1.1 besorolás, 3 egység építhető a telekre-oldalhatáron álló felépítmény, 4,8 m-es magassággal-30 %-ban beépíthető, 50 % zöldfelülettel-víz, villany, csatorna bekötve-gáz az utcánMegtekintéshez időpontot kérjen még ma! Teljes körű pénzügyi megoldások ügyintézése díjmentesen:* Bankfüggetlen hitelcenterünk díjmentesen versenyezteti minden bank és hitelintézet ajánlatát.* Önnek nincs más dolga, mint beszélgetni munkatársunkkal, majd a megversenyeztetett ajánlatokból kiválasztani a hosszútávon is a legmegfelelőbb konstrukciót.* Szakértőnk több mint 20 éves szakmai tapasztalattal és egyedi igényekre szabott, fogyasztóbarát lakáshitelekkel, babaváró hitellel, teljes körű CSOK ügyintézéssel várja Önt.* Előre egyeztetett időpontban.Pakson téglaépítésű családi ház eladó

További adatok

Telekterület: 903 m2
Kert mérete: 903 m2
Erkély mérete: 12 m2
Felszereltség: -
Parkolás: -
Kilátás: -
Egyéb extrák:  
-

Hirdető adatai

Hirdető neve: Otthon Centrum
Kapcsolattartó: Baranyi Mónika
Hirdető telefonszáma: +36 70 388 5776
Honlap: -