Ház
Origó
HázOrigoval pont a központban

Budapest, I.kerület


 

Ingatlan adatai

Irányár: 1 128 192 Ft/hó
Típus: iroda
Kategória: kiadó
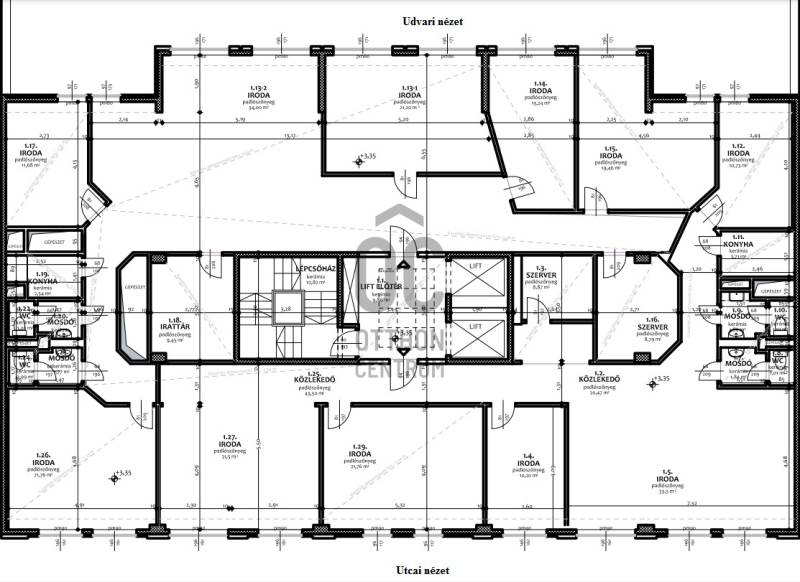
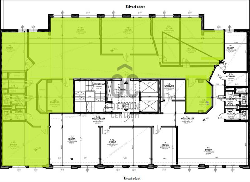
Alapterület: 206 m2
Fűtés: -
Állapota: -
Szobák száma: -
Építés éve: 2000
Szintek száma: -

Részletes leírás

KIADÓ egy központi elhelyezkedésű, I. kerületi irodaház I. emeletén lévő fél irodai szint.A szinten csupán két nagyobb iroda helyezkedik el.Teljesen elkülönített, zárható irodai blokkok, saját teakonyhával, férfi- női mosdókkal és szerverszobával kialakított bérlemény várja hosszabb távú bérlőjét.Az irodaházról:- frekventált helyen a Krisztina tértől 150m -re található irodaház- 24 éve épült, folyamatosan karbantartott épület- 3 szintes parkolóház, ehhez az irodai részhez 2 db parkolóhely bérelhető- portaszolgálat 7-17 óráig, igényes- modern ügyfélfogadó tér- jelenleg is magasan minősített cégek bérlik az irodákat. Pénzügyi, ingatlanfejlesztési, tévécsatorna tevékenységi körrel.Az irodáról:- br. 206 nm- udvari+ utcai nézetű- több irodai blokk, több zárható és elkülönített tárgyaló- korszerűsített hűtés- fűtés rendszer- bérleti díj: 14 euro+ ÁFA/nm- 2400,- + ÁFA/nm fenntartási költség+ áram használat (külön mérőóra felszerelve)- a bérbeadás 3 havi bérleti díj megfizetése ellenében tud megtörténni- a bérlemény azonnal költözhető hosszabb távraAmennyiben felkeltette érdeklődését az ingatlan kérem keressen bizalommal.

További adatok

Telekterület: -
Kert mérete: -
Erkély mérete: -
Felszereltség: -
Parkolás: -
Kilátás: -
Egyéb extrák:  
-

Hirdető adatai

Hirdető neve: Otthon Centrum
Kapcsolattartó: Kurai Kitti
Hirdető telefonszáma: +36 70 461 9246
Honlap: -