Ház
Origó
HázOrigoval pont a központban

Budapest, XIX.kerület


 

Ingatlan adatai

Irányár: 65 900 000 Ft
Típus: lakás (tégla)
Kategória: eladó
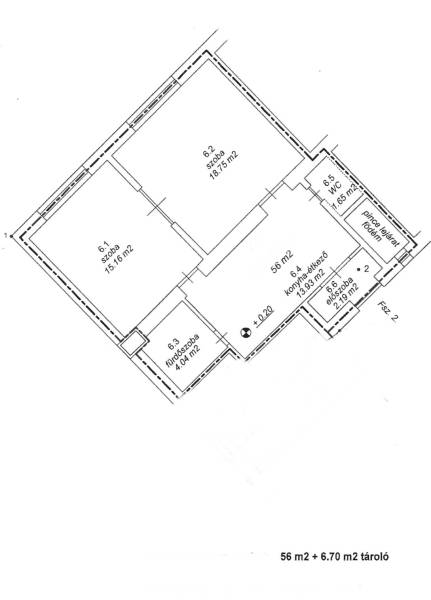
Alapterület: 56 m2
Fűtés: gáz (cirko)
Állapota: -
Szobák száma: 2
Építés éve: 1970
Szintek száma: -

Részletes leírás

Budapest XIX. kerületének központi részén kínálunk megvételre egy jó állapotú, 56 m²-es téglalakást, csendes és összetartó lakóközösséggel.Az ingatlan kizárólagos használatú pincérrésszel bír. Jogilag rendezett, per- és tehermentes.A kert gondozott, közös tulajdonú, kellemes zöld környezetet biztosít a mindennapokhoz.A lokáció kiemelkedő infrastruktúrával rendelkezik – minden megtalálható pár perc sétatávolságon belül:óvoda, bölcsőde, iskola, bevásárlási lehetőségek (piac, LIDL, Spar, SHOPMARK, KÖKI Terminál), valamint parkok és orvosi rendelő is a közelben.A tömegközlekedés kiváló: villamos-, busz- és metrómegálló néhány perc alatt elérhető, így a belváros gyorsan megközelíthető.

További adatok

Telekterület: -
Kert mérete: -
Erkély mérete: -
Felszereltség: -
Parkolás: -
Kilátás: utcai
Egyéb extrák:  
-

Hirdető adatai

Hirdető neve: Otthon Centrum
Kapcsolattartó: Orosz Ágnes
Hirdető telefonszáma: +36 70 716 8626
Honlap: -