Ház
Origó
HázOrigoval pont a központban

Pest megye, Pécel


 

Ingatlan adatai

Irányár: 89 000 000 Ft
Típus: ház
Kategória: eladó
Alapterület: 83 m2
Fűtés: gáz (cirko)
Állapota: új
Szobák száma: 3
Építés éve: 2025
Szintek száma: -

Részletes leírás

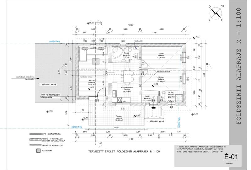
Új építésű, kulcsrakész családi ház eladó Pécelen, a Kolozsvári utcában!Pécel egyik csendes, rendezett mellékutcájában eladó egy új építésű, földszintes családi ház 330 m²-es kizárólagos használatú telekrésszel, amely egy meglévő épülethez kapcsolódva, bővítési engedéllyel épült modern műszaki tartalommal és minőségi anyaghasználattal.A ház nettó 72,5 m² alapterületű, melyhez 16,66 m²-es terasz és 3,85 m²-es belépő is tartozik. A belső elosztása praktikus és átgondolt:tágas nappali–konyha–étkező, két hálószoba, két fürdőszobaA 30 cm Porotherm téglafal és a 15 cm EPS homlokzati hőszigetelés kiváló hőmegtartást biztosít. A vízszintes fa födémen 30 cm ásványgyapot szigetelés, a padlóban 10 cm lépésálló hőszigetelés található.A 3 rétegű üvegezésű, hőszigetelt nyílászárók között toló teraszajtó, valamint alumínium, hőszigetelt elektromos redőnyök és szúnyoghálók is beépítésre kerültek.A fűtésről kondenzációs gázkazán gondoskodik padlófűtéssel, a kellemes hőmérsékletet hűtő-fűtő klíma egészíti ki.A térkövezett járda és autóbeálló, elektromos kapu, valamint a modern, letisztult kerítés tovább emeli a ház kényelmét és esztétikáját.Az ingatlan kulcsrakészen kerül átadásra 2 hónapon belül.Minőségi burkolatok, szaniterek beltéri ajtók kerülnek beépítésre.Ez a ház ideális választás mindazoknak, akik modern, energiatakarékos otthont keresnek nyugodt környezetben, mégis közel Budapesthez.INGYENES hitel tanácsadás, CSOK Plusz ügyintézés!BANKFÜGGETLEN hitelcentrumunk az összes elérhető bank és hitelintézet ajánlatát versenyezteti az Ön kedvéért, ráadásul DÍJMENTESEN.- Egyedi, bankfiókban nem elérhető kamat- és díjkedvezmények- Hitelképesség vizsgálat- Idő, energia és pénz megtakarítás- Teljes hivatali ügyintézésAmennyiben hirdetésem felkeltette az érdeklődését vagy egyéb információra van szüksége hívjon bizalommal!

További adatok

Telekterület: 330 m2
Kert mérete: 330 m2
Erkély mérete: 17 m2
Felszereltség: -
Parkolás: -
Kilátás: kertre néző
Egyéb extrák:  
-

Hirdető adatai

Hirdető neve: GDN Ingatlanhálózat
Kapcsolattartó: Horváth Péter
Hirdető telefonszáma: +36-70-606-2990
Honlap: -