Ház
Origó
HázOrigoval pont a központban

Pest megye, Cegléd


 

Ingatlan adatai

Irányár: 57 000 000 Ft
Típus: lakás (újépítésű)
Kategória: eladó
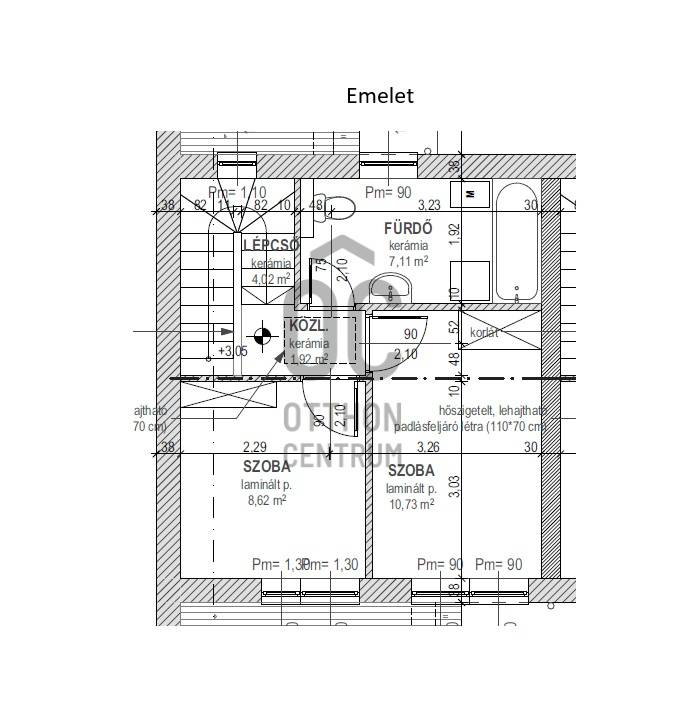
Alapterület: 62 m2
Fűtés: -
Állapota: új
Szobák száma: 3
Építés éve: 2025
Szintek száma: -

Részletes leírás

Egy komplex lakást ajánlok, nemcsak lakást, hanem hozzá ZÁRT UDVARI PARKOLÓT, TÁROLÓT is kapsz, de nézzük a részleteket!Amennyiben Cégléden nézegetünk ingatlant, akkor már a használt, kicsit korszerűtlen, felújítandó ingatlanokra is látjuk a 700-800.000 Ft/nm árat.Ezen lakás:- Új építésű- Kifejezetten korszerű aanyagokból- Megújúló energivál, - 3 %-os hitelre is alkalmas- Hőszivattyús fűtéssel,- Nappali és 2 szobával, - Terasszal, -Zárt udvari gépkocsiparkolóval kerül átadásra, több mint 15 éve működő építőipari cég kivitelezésében.Ammenyiben kíváncsi vagy a részletekrte, tervdokumentációkra, keressél bátran!Köszönöm!Hitelre van szüksége? Tudunk segíteni!Az Otthon Centrum az ország egyik legnagyobb és legmegbízhatóbb hitelközvetítőjeként, teljes körű és díjmentes hitelügyintézéssel, biztosításkötéssel áll rendelkezésére!Kérje személyre szabott ajánlatunkat Kollégáinktól!

További adatok

Telekterület: -
Kert mérete: -
Erkély mérete: 8 m2
Felszereltség: -
Parkolás: -
Kilátás: udvari
Egyéb extrák:  
-

Hirdető adatai

Hirdető neve: Otthon Centrum
Kapcsolattartó: Kovács László
Hirdető telefonszáma: +36 70 469 3826
Honlap: -