Ház
Origó
HázOrigoval pont a központban

Pest megye, Szigetszentmiklós


 

Ingatlan adatai

Irányár: 74 950 000 Ft
Típus: lakás (tégla)
Kategória: eladó
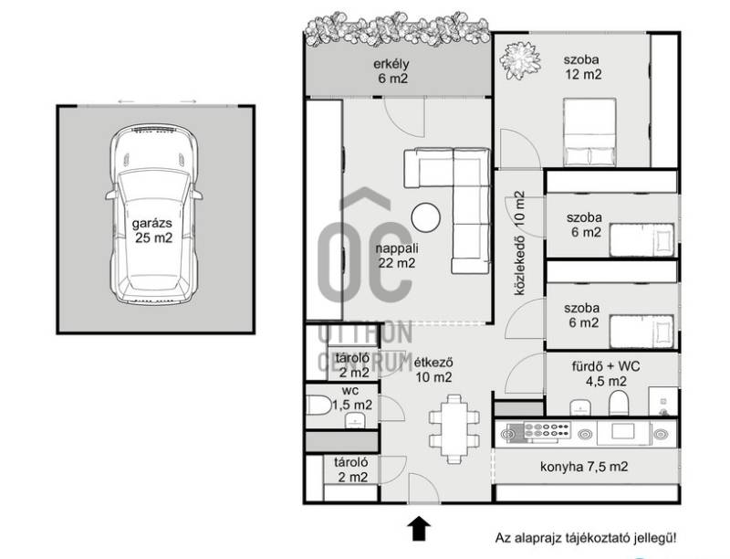
Alapterület: 80 m2
Fűtés: gáz (konvektor)
Állapota: -
Szobák száma: 4
Építés éve: 1980
Szintek száma: -

Részletes leírás

Családi otthont keresel? Akár 3%-os Otthon Start hitellel? Rendben!Figyelem! Itt az otthon, ahol mindenki elfér, és minden megvan, amire csak szükség lehet!Szigetszentmiklós központi, mégis csendes részén eladó egy 80 m²-es, földszinti, világos és modern lakás + 25 m²-es saját garázzsal, zárt udvarban, gondozott, közös kerttel.Fantasztikus elosztásának és praktikus megoldásainak köszönhetően igazi családi fészek!Amit imádni fogsz benne:- tágas nappali–étkező–konyha, ahol együtt lehet a család- 3 külön nyíló hálószoba – mindenkinek saját birodalom- fürdőszoba WC-vel + külön WC kézmosóval – nincs több reggeli sorban állás- erkély – hangulatos, világos, tökéletes egy reggeli kávéhoz- gardrób, tárolók, sok pakolóhely- modern műanyag ablakok redőnnyel és szúnyoghálóval- konvektoros fűtés + hűtő-fűtő klíma- bútorok megegyezés szerint maradhatnak- nyugodt, barátságos lakóközösség- zárt udvarban saját 25 m²-es garázs – biztonságos parkolás, extra tárolóhelyElhelyezkedés:- Aldi, Pláza, kávézó, bank, buszmegálló mindössze 50 méterre!- központi, mégis csendes, családbarát környékA garázst az ingatlannal együtt meg kell vásárolni: +9.900.000.- Ft Egy ritka kincs Szigetszentmiklóson – modern, világos, tágas otthon, amit csak be kell lakni!Hívjon és szeressen bele!

További adatok

Telekterület: -
Kert mérete: -
Erkély mérete: 6 m2
Felszereltség: -
Parkolás: -
Kilátás: kertre néző
Egyéb extrák:  
-

Hirdető adatai

Hirdető neve: Otthon Centrum
Kapcsolattartó: Pomucz-Nagy Anita
Hirdető telefonszáma: +36 70 469 3296
Honlap: -