Ház
Origó
HázOrigoval pont a központban

Nógrád megye, Erdőtarcsa


 

Ingatlan adatai

Irányár: 10 500 000 Ft
Típus: ház
Kategória: eladó
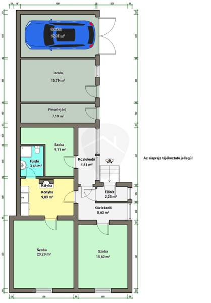
Alapterület: 72 m2
Fűtés: -
Állapota: felújítást igényel
Szobák száma: 2+1
Építés éve: 1950
Szintek száma: -

Részletes leírás

*** Áron alul eladó családi ház! ***Nógrád vármegye, Erdőtarcsa település csendes utcájában eladó egy nettó 72 m2-es, 2+1 szobás felújítandó családi ház. A telek 1628 m2-es összközművesített, viszont jelenleg a gázóra leszerelésre került. A fűtésről egy kályha gondoskodik, de igény szerint a gázkonvektor visszakötésére vagy központi gáz kialakítására van lehetősége az új tulajdonosnak. Az elmúlt évek során a fürdőszoba és a villanyhálózat felújításra került, illetve 32 amperes bővítés megtörtént. Az épület felújításra szorul, ezért kedvező az ára. A fürdőszoba és a fél szoba alatt egy száraz pince található. További előnye, hogy GARÁZS is rendelkezésre áll. Locsolás kútról lehetséges.A településen jellemző a csend és nyugalom, nem főútvonal mellett található. Budapest autóval 1 órán belül elérhető, így akár bejárás szempontjából is kényelmes.Jogilag rendezett, 1/1-es TEHERMENTES tulajdonjog. Azonnal birtokba vehető!Az ÁR KEDVEZŐ, ezért telefonáljon mihamarabb. Megtekintés rugalmas.

További adatok

Telekterület: 1 628 m2
Kert mérete: 1 628 m2
Erkély mérete: -
Felszereltség: -
Parkolás: -
Kilátás: utcai
Egyéb extrák:  
-

Hirdető adatai

Hirdető neve: Ingatlanmentor powered by Rock Home
Kapcsolattartó: Horváth Tibor
Hirdető telefonszáma: +36 70 467 6871
Honlap: -