Ház
Origó
HázOrigoval pont a központban

Pest megye, Maglód


 

Ingatlan adatai

Irányár: 109 900 000 Ft
Típus: ház
Kategória: eladó
Alapterület: 113 m2
Fűtés: -
Állapota: új
Szobák száma: 5
Építés éve: 2025
Szintek száma: -

Részletes leírás

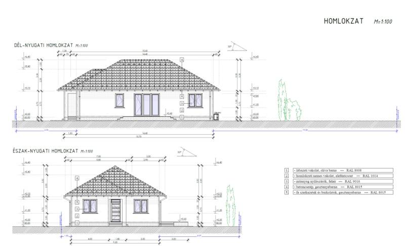
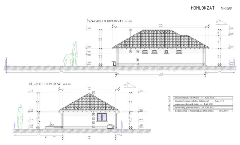
Maglódon a Dózsa György úton, 1074 m2-es telken, újonnan épülő nettó 111,29 m2 hasznos lakótérrel rendelkező, 4 szoba + nappalis önálló családi ház eladó.Csok plusz, Otthon Start elérhető!A terv még módosítható, igény szerint kialakítható három szobával és nagyobb nappalival is a családi ház!Az ingatlan 30-as Nútféderes tégla falazóelemből épül, fa födémmel.A tető héjazata antracit betoncserép lesz, a homlokzatok 15cm EPS, a padló 10cm Austrotherm AT-N100-as, a vízszintes födém 25cm Ásványgyapot szigeteléssel lesz ellátva.Hat légkamrás 3 rétegű evegekkel szerelt nyílászárók kerülnek beépítésre.A fűtést 10kw-os monoblockos hőszivattyús rendszer fogja ellátni, padlófűtéssel. A műszaki tartalom választható az alábbi költségkereten belül:-hidegburkolat:5000.- Ft./m2-ig.-melegburkolat:5000.- Ft./m2-ig-csaptelepek:15.000.- Ft./db-kád vagy zuhany: 50.000.- Ft.-beltéri ajtók:50.000.- Ft./dbElektromos kiépítés:-Konnektorok szobákban: 3 db-Konnektorok nappaliban 4db + internet és kábeltv kiállás-Konnektorok konyhában: 6db-Világítás helyiségenként 1-1 db-Kábeltévé: ElőkészítésMagasabb árú tatalom is választható a különbség finanszírozásával.Riasztó előkészítés és kapu mozgató elektronika előkészítés is készül.Kérésre szívesen küldünk komplett tervdokumentációt, műszaki leírást.A kivitelező korábban Sülysápon számos ingatlant épített,a már értékesített és birtokbaadott ingatlanokat komoly érdeklődés esetén szívesen megmutatjuk referenciaként.Várható átadás 2026 második negyedév!INGYENES hitel tanácsadás, CSOK Plusz ügyintézés!BANKFÜGGETLEN hitelcentrumunk az összes elérhető bank és hitelintézet ajánlatát versenyezteti az Ön kedvéért, ráadásul DÍJMENTESEN.- Egyedi, bankfiókban nem elérhető kamat- és díjkedvezmények- Hitelképesség vizsgálat- Idő, energia és pénz megtakarítás- Teljes hivatali ügyintézésAmennyiben hirdetésem felkeltette az érdeklődését vagy egyéb információra van szüksége hívjon bizalommal!

További adatok

Telekterület: 1 074 m2
Kert mérete: 1 074 m2
Erkély mérete: 15 m2
Felszereltség: -
Parkolás: -
Kilátás: kertre néző
Egyéb extrák:  
-

Hirdető adatai

Hirdető neve: GDN Ingatlanhálózat
Kapcsolattartó: Horváth Péter
Hirdető telefonszáma: +36-70-606-2990
Honlap: -