Ház
Origó
HázOrigoval pont a központban

Fejér megye, Gárdony


 

Ingatlan adatai

Irányár: 150 000 Ft/hó
Típus: lakás (újépítésű)
Kategória: kiadó
Alapterület: 38 m2
Fűtés: -
Állapota: új
Szobák száma: 2
Építés éve: 2025
Szintek száma: -

Részletes leírás

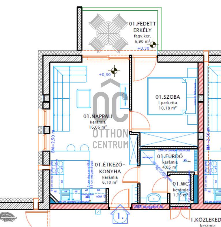
Új építésű, földszinti, fedett teraszos kis lakás bútorozatlanul, hosszú távra kiadó a Termálfürdő közelében.Lakás jellemzői:• 37,52 m² hasznos alapterület + 6,9 m² fedett terasz• Nappali + hálószoba, konyha-étkező, fürdőszoba és külön mellékhelyiség• Modern, hőszivattyús mennyezeti fűtés-hűtés – alacsony rezsivel• Keleti tájolás, világos, zöldövezeti kilátással• Új építésű, liftes, háromszintes téglaépület• Közös tároló• 1 db nyitott belső gépkocsibeállóBérleti feltételek:• Maximum 2 fő részére• Minimum 1 éves bérleti szerződés• 1 havi bérleti díj + 2 havi kaució• Kisállat nem hozható• Dohányzás a lakásban nem megengedett• Közjegyző által ellenjegyzett kiköltözési nyilatkozat aláírása (költségét a bérbeadó viseli)Elhelyezkedés:Csendes, rendezett környezet Gárdony-Agárdon, az Agárdi Termálfürdőtől és a Velencei-tótól pár percre.Kiváló infrastruktúra: bevásárlási lehetőségek, orvosi rendelő, gyógyszertár, posta a közelben.Tömegközlekedéssel is jól megközelíthető (vasút, busz, főútvonal a közelben).Ideális választás egyedülállóknak vagy pároknak, akik csendes, modern környezetben keresnek otthont a Velencei-tó közelében.#Agárd #KiadóLakás #ÚjÉpítésű #Hőszivattyús #Teraszos #VelenceiTó #ModernOtthon

További adatok

Telekterület: -
Kert mérete: -
Erkély mérete: 7 m2
Felszereltség: -
Parkolás: -
Kilátás: udvari
Egyéb extrák:  
-

Hirdető adatai

Hirdető neve: Otthon Centrum
Kapcsolattartó: Leitner Tamás
Hirdető telefonszáma: +36 70 469 3531
Honlap: -