Ház
Origó
HázOrigoval pont a központban

Pest megye, Szentendre


 

Ingatlan adatai

Irányár: 149 900 000 Ft
Típus: ház
Kategória: eladó
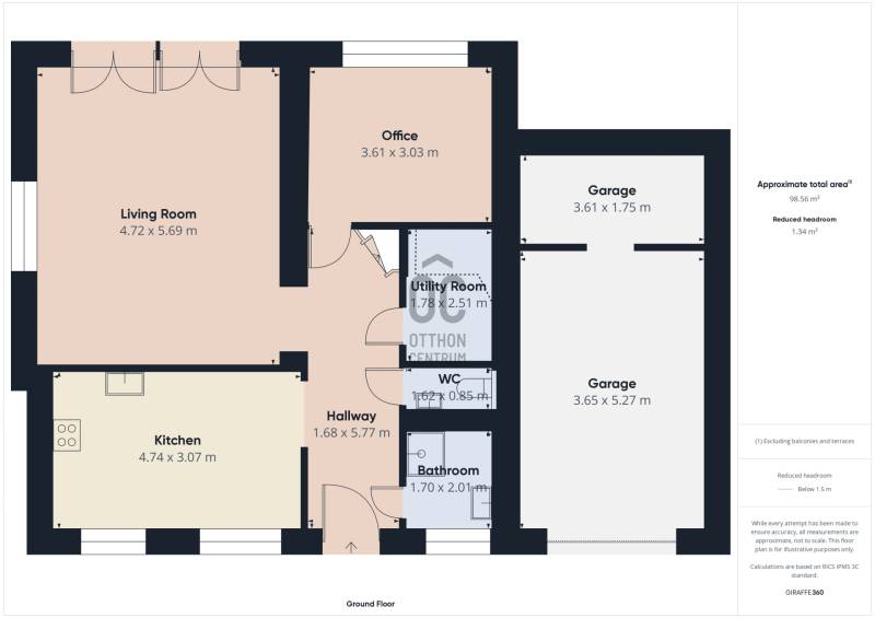
Alapterület: 140 m2
Fűtés: gáz (cirko)
Állapota: -
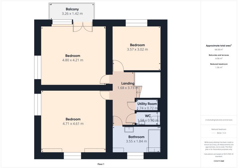
Szobák száma: 5
Építés éve: 1989
Szintek száma: -

Részletes leírás

Szentendre Püspökmajor városrészében, egy csendes és barátságos környezetben kínáljuk eladásra ezt a kiváló adottságokkal rendelkező, 140 nm alapterületű használt házat, amely ideális választás családosok számára. Az ingatlan 5 szobával és 2 fürdőszobával rendelkezik, így bőséges teret biztosít a család minden tagja számára. A tágas nappali a központi helyszíne lehet a családi összejöveteleknek, ahol a beépített bútorok és szekrények maximálisan kihasználják a rendelkezésre álló teret, miközben stílusos megjelenést kölcsönöznek az otthonnak. A házhoz tartozik egy 16 nm-es terasz, amely ideális helyszín a reggeli kávézásokhoz vagy a nyári estéken való pihenéshez, valamint egy 5 nm-es erkély, ahol élvezheti a környék nyugodt légkörét. A 247 nm-es telek rendezett kerttel rendelkezik, amely tökéletes lehetőséget kínál a gyerekek számára a szabadban való játékra, illetve a felnőtteknek a pihenésre és a kertészkedésre. A fűtés gáz cirkóval megoldott, amely biztosítja az ingatlan melegét a hideg téli hónapokban is. Az ingatlan tehermentes, így azonnal birtokba vehető, ami különösen kedvező lehet a gyors döntést hozó vevők számára. A környék ellátottsága kiváló, hiszen a közeli boltok, iskolák és óvodák mindössze néhány percnyi sétára találhatók. A közlekedés is kitűnő, hiszen a városközpont könnyen elérhető autóval, de a tömegközlekedési lehetőségek is bőségesek, így a mindennapi ingázás nem jelenthet problémát. A környék biztonságos és csendes, ideális választás családok számára, ahol a gyerekek szabadon játszhatnak, míg a szülők nyugodtan pihenhetnek. Ez az ingatlan nem csupán egy ház, hanem egy otthon, ahol a mindennapok örömteliek lehetnek. Amennyiben bármilyen kérdése lenne a bemutatott ingatlannal kapcsolatban, kérem, ne habozzon felkeresni, hiszen szívesen állok rendelkezésére minden információval, amely segíthet a döntésében. Az ingatlan iránti érdeklődését szívesen fogadom, hiszen egy ilyen lehetőség nem mindennapi.

További adatok

Telekterület: 247 m2
Kert mérete: 247 m2
Erkély mérete: 21 m2
Felszereltség: -
Parkolás: -
Kilátás: -
Egyéb extrák:  
-

Hirdető adatai

Hirdető neve: Otthon Centrum
Kapcsolattartó: Kovács Alexandra Magdolna
Hirdető telefonszáma: +36 70 412 3266
Honlap: -