Ház
Origó
HázOrigoval pont a központban

Budapest, XV.kerület


Rákospalota 

Ingatlan adatai

Irányár: 157 000 000 Ft
Típus: ház
Kategória: eladó
Alapterület: 170 m2
Fűtés: -
Állapota: -
Szobák száma: 4+1
Építés éve: 1957
Szintek száma: -

Részletes leírás

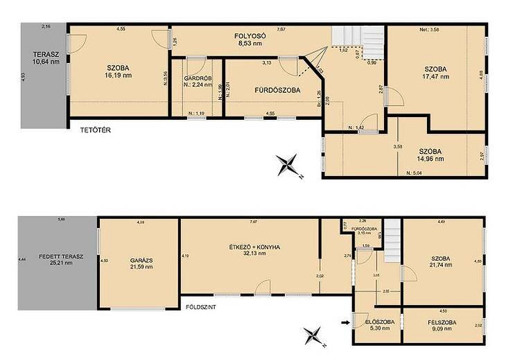
XV. KERÜLETBEN, RÁKOSPALOTÁN, ELADÓ 170 NM-ES, 2 SZINTES, TÁGAS, 5 SZOBÁS, 2 FÜRDŐSZOBÁS ÖNÁLLÓ CSALÁDI HÁZ FEDETT TERASSZAL, ERKÉLLYEL, GARÁZZSAL 477 NM TELKEN.AZ ÉPÜLET JELLEMZŐI:2016-ban teljeskörű felújításon esett át az épület: kicserélték a teljes elektromos hálózatot, burkolatokat, szanitereket, lefolyórendszert, korszerűsítették a fűtésrendszert, valamint elektromos kapu és garázsajtó lett felszerelve és 4 db hűtő-fűtő klíma.A teljes földszinten rendszeresen tisztított padlófűtés van lerakva, az épület fűtéséről cirkó kazán gondoskodik. Az emeleten plusz szivattyúval működtethető, lapradiátoros fűtőrendszer lett kialakítva hozzá, hogy a távolabb eső szobák is megfelelően fűthetőek legyenek. 2017-ben műanyag, hőszigetelt ablakokat építettek be, a fakeretes tetőablakokban az üvegek lettek kicserélve. Az épület 10 cm dryvit szigetelést kapott. A kertben esővíz tároló és locsolórendszer van kialakítva. A világítással ellátott kertben egy szerszámos ház is helyet kapott, a fedett terasz alatt pedig egy kő sütögető van felépítve.A HÁZ ELRENDEZÉSE:Földszint:- előszoba- vendégszoba- nappali- étkezős konyha- fürdőszobaEmelet:- közlekedő- 3 szoba- fürdőszoba káddal és zuhanyzóval- gardróbPARKOLÁS:Garázs és kocsibeálló az udvarbanKÖZLEKEDÉS:Pár percre a 96, 296, 296A, 124, 225, 231, 231B busz, 973, 996 éjszakai járat, valamint regionális buszmegálló.IRÁNYÁR: 157 M FTFINANSZÍROZÁS:Az ingatlan banki finanszírozással is megvásárolható, melyben irodánk ingyenes tanácsadással áll rendelkezésükre!VEVŐINK RÉSZÉRE A KÖZVETÍTÉS DÍJTALAN !!A hirdetésben szereplő adatok tájékoztatás jellegűek!

További adatok

Telekterület: 477 m2
Kert mérete: 477 m2
Erkély mérete: -
Felszereltség: -
Parkolás: -
Kilátás: -
Egyéb extrák:  
-

Hirdető adatai

Hirdető neve: MPD Hungary Kft.
Kapcsolattartó: Újhely Ingatlan Kft.
Hirdető telefonszáma: +36202885981
Honlap: -