Ház
Origó
HázOrigoval pont a központban

Budapest, II.kerület


Lublói utca 

Ingatlan adatai

Irányár: 128 500 000 Ft
Típus: lakás (tégla)
Kategória: eladó
Alapterület: 148 m2
Fűtés: gáz (cirko)
Állapota: -
Szobák száma: 3
Építés éve: 1930
Szintek száma: -

Részletes leírás

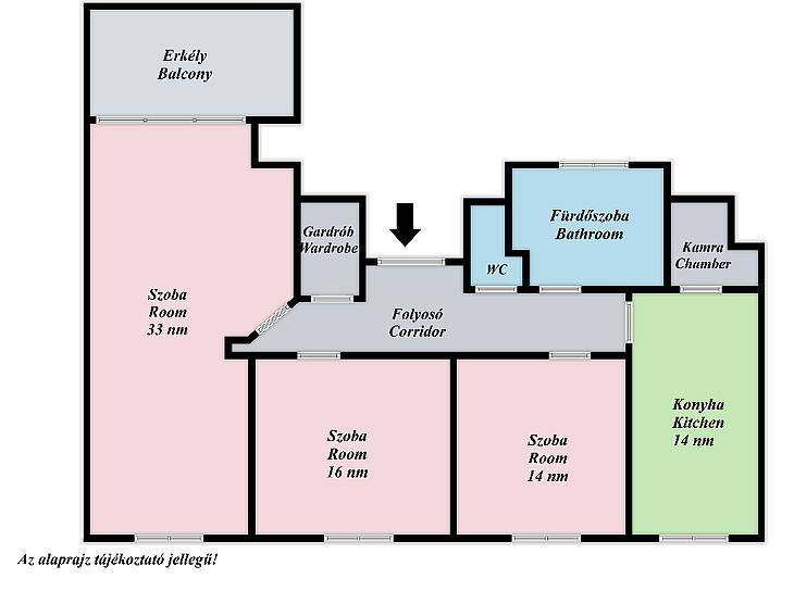
Eladó tágas tetőtéri lakás Újlak csendes, zöldövezeti részénA Kolosy tér és a Hármashatár-hegy közelében, egy hangulatos, macskaköves utcában kínálunk eladásra egy 148 m²-es, második emeleti tetőtéri lakást, egy négylakásos házban. A környék folyamatosan fejlődik, szemben lévő épületet épp felújítják, a közelben sportpálya is található.A lakás 3 különnyíló szobával rendelkezik (14, 16 és egy 33 m²-es nappali), utóbbiból közvetlen kijárat nyílik a napfényes, 10 m²-es teraszra. A konyha tágas, kamrával és francia erkéllyel. Külön fürdő, két WC, gardrób, valamint saját padlás és tároló is tartozik hozzá. A hálószobák klimatizáltak, a nappali igény esetén könnyen kettéosztható, így akár egy plusz szoba is kialakítható. A lakáshoz kizárólagos kertkapcsolat is jár.A ház használati megosztással rendelkezik, a társasházzá alakítás folyamatban van. Ritka lehetőség a környéken, ahol már szinte csak nagyobb társasházak találhatók, de a lakás jelenlegi állapotában is hitelezhetőHa egy napfényes, nyugodt, jól megközelíthető otthont keres Budán, ez a lakás remek választás. További információért, megtekintésért keressen minket bizalommal.

További adatok

Telekterület: -
Kert mérete: -
Erkély mérete: -
Felszereltség: -
Parkolás: -
Kilátás: kertre néző
Egyéb extrák:  
-

Hirdető adatai

Hirdető neve: MPD Hungary Kft.
Kapcsolattartó: La Cittá dell Acqua Kft.
Hirdető telefonszáma: +36704244380
Honlap: -