Ház
Origó
HázOrigoval pont a központban

Pest megye, Solymár


 

Ingatlan adatai

Irányár: 230 000 000 Ft
Típus: ház
Kategória: eladó
Alapterület: 270 m2
Fűtés: gáz (cirko)
Állapota: -
Szobák száma: 6
Építés éve: 2001
Szintek száma: -

Részletes leírás

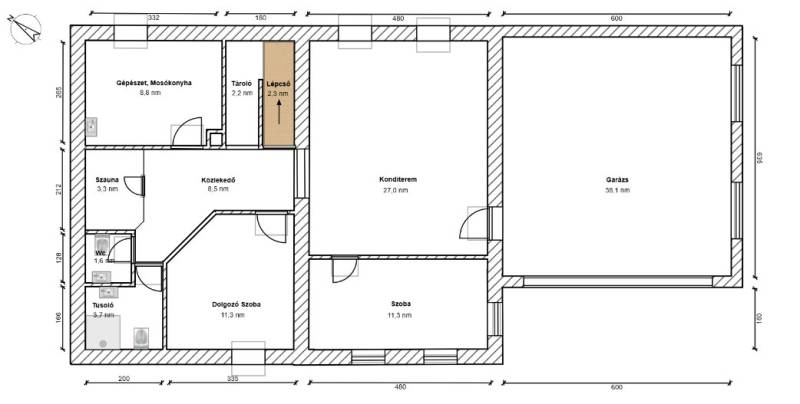
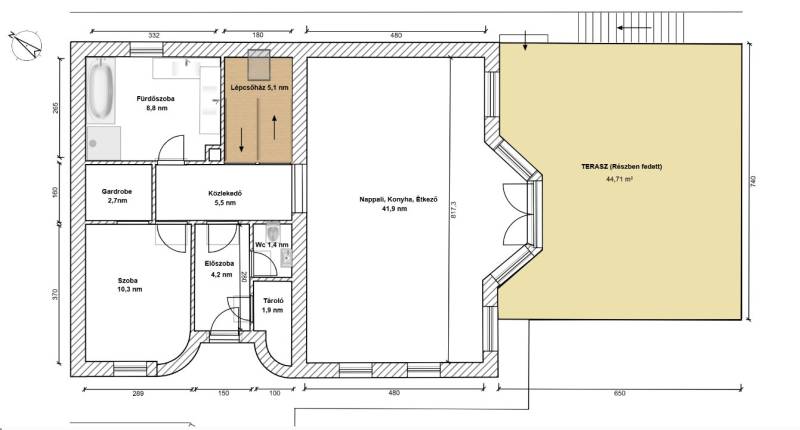
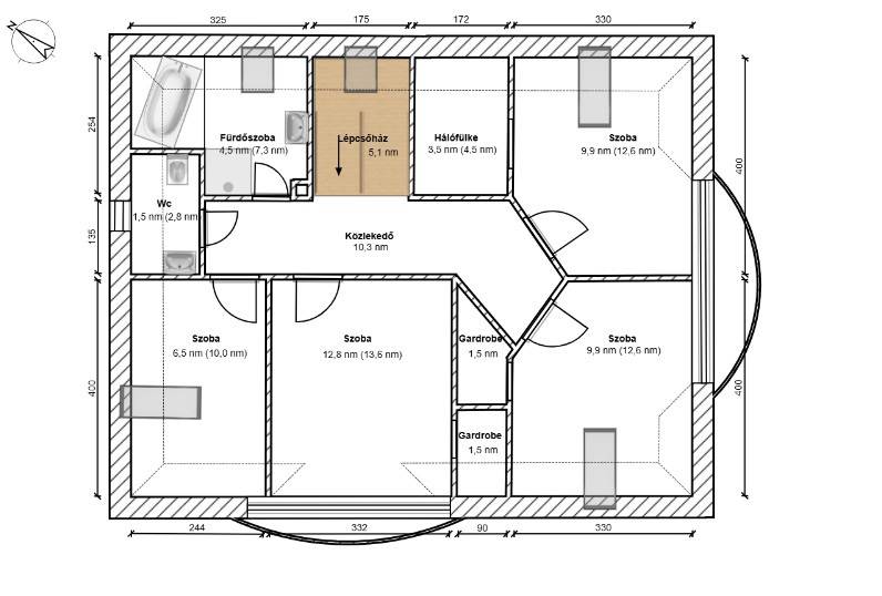
Találd meg OTTHONOD!Egy hely, ahol minden részlet rólad szól.Ez az ingatlan nemcsak szép, hanem átgondolt, praktikus, és minden részletében otthonos.Egy panorámás ház, amit szeretettel építettek, igényesen karbantartottak, és ahol a természet közelsége találkozik a kényelemmel.Ha eleged van a város zajából, de nem akarsz lemondani a kényelmes mindennapokról, akkor ez a ház neked való!________________________________________Főbb adatok:•Helyszín: Solymár, Pest vármegye•Telek: 562 m²•Bruttó alapterület: 316,93 m² + kb. 30 m² padlás•Zöldfelület: 325 m² (kb. 61%)•Építés éve: 2001•Szerkezet: 38-as Porotherm tégla, vasbeton födém•Tető: prémium minőségű cserép•Fűtés: gáz cirkó + hűtő-fűtő klíma mindkét szinten•Szintek száma: 3 •Garázs: kétállásos (40 m²), közvetlen bejárattal a házba________________________________________Részletes leírás:Az ingatlan 2001-ben saját részre, kiemelten gondos kivitelezéssel épült. A ház körbe 15 cm grafitos szigetelést, új homlokzatfestést és 2017-ben modern műanyag nyílászárókat kapott alumínium redőnyökkel. A padlás szigetelt és 2018-ban tárolóként kialakítva.Belső felújítások:•2018: új laminált padló az emeleten, teljesen megújult fürdő és WC•2024: új IKEA konyha beépített gépekkel, vízálló laminált parketta a nappaliban•Új padló a lenti szobában isA ház folyamatosan karbantartott, újszerű állapotban van, beköltözésre kész.________________________________________Elrendezés:Emelet:•3 szoba (mindegyikhez saját gardrób és erkély)•1 félszoba•Fürdő, külön WC, folyosóAlsó szint:•Amerikai konyhás nappali (teraszkapcsolattal)•Spájz, fürdő (kád + zuhany), külön WC•1 szobaSzuterén:•2 szoba és egy jelenleg tornateremként használt helyiség•Mosókonyha, fürdő, WC, raktár•Külön lakás is kialakítható ebből a szintbőlGarázs:Duplaállásos, 40 m²-es, a terasz alatt, közvetlen bejárattal a házba. A garázs előtt térkövezett rész, több autó is kényelmesen elfér, és a zsákutcás kialakítás miatt, csendes környék.________________________________________Környezet és panoráma:A ház zsákutcában található, csak az jár erre, aki itt lakik – nyugodt, családias környék, barátságos szomszédokkal.Örök panoráma nyílik a Les-hegyre, a környék már teljesen beépült, így ez a kilátás garantáltan megmarad.A kert kényelmes méretű, ahol van lehetőség pihenni, kertészkedni vagy játszani.A 40 m²-es terasz 2018-ban új burkolatot kapott, kőhatású lapokkal – innen is panorámás kilátás nyílik, tökéletes hely egy reggeli kávéhoz vagy esti borozáshoz.________________________________________Közlekedés és elhelyezkedés:Az utca végéből indul a kék busz, így a tömegközlekedés kiváló, de autóval is pár perc alatt elérhető a főút vagy az M0.A környék elragadó, nyugodt, és minden megtalálható a közelben: boltok, óvoda, iskola, túra- és bicikliutak, éttermek.________________________________________Ez a ház tényleg otthon – szeretettel épült, folyamatosan karbantartott, és most új tulajdonosát várja.Ha egy olyan helyet keresel, ahol a modern kényelem és a természet közelsége tökéletes harmóniában van,LE NE MARADJ! Győződj meg személyesen – keress bátran!

További adatok

Telekterület: 562 m2
Kert mérete: 562 m2
Erkély mérete: 45 m2
Felszereltség: -
Parkolás: -
Kilátás: -
Egyéb extrák:  
-

Hirdető adatai

Hirdető neve: Otthon Centrum
Kapcsolattartó: Tóth Kata
Hirdető telefonszáma: +36 70 716 8601
Honlap: -