Ház
Origó
HázOrigoval pont a központban

Hajdú-Bihar megye, Hajdúszoboszló


 

Ingatlan adatai

Irányár: 129 000 000 Ft
Típus: ház
Kategória: eladó
Alapterület: 130 m2
Fűtés: gáz (cirko)
Állapota: új
Szobák száma: 5
Építés éve: 2026
Szintek száma: -

Részletes leírás

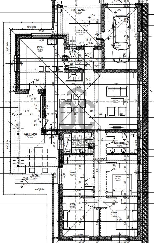
Ha egy igazán különleges, modern otthont keresel Hajdúszoboszló Kertvárosában, akkor ez az ingatlan neked szól! Az új építésű, prémium kivitelezésű ház 130 nm-en terül el, és 750 nm-es telekkel rendelkezik, ami bőséges helyet biztosít a kikapcsolódásra és a szabadidős tevékenységekre. Az ingatlanban öt tágas szoba található, így ideális választás, akár családosok, akár baráti társaságok számára. A világos nappali és az amerikai konyha egyedi tervezésének köszönhetően a közös időtöltés élménye igazán különleges lesz. A 22 nm-es teraszra kilépve pedig élvezheted a csendes környék nyugalmát, miközben a friss levegőn pihenhetsz. A ház állapota kiváló, minden részletében a modern igényeknek megfelelően lett kialakítva. A fűtés gáz cirkóval, a hűtés klímával megoldott, így az év bármely szakaszában kellemes hőmérséklet vár rád. A nagy belmagasság és a világos terek pedig még inkább fokozzák a tágasság érzetét. Hajdúszoboszló Kertvárosának környezete kiemelkedően csendes és biztonságos, ideális helyszín a pihenésre és a feltöltődésre. Ez az ingatlan nemcsak egy otthon, hanem egy életstílus megtestesítője is. Ha szeretnél egy exkluzív, modern, kertkapcsolatos lakásban élni, ahol a természet és a városi kényelem találkozik, ne habozz! Kérdéseiddel bizalommal kereshetsz, szívesen segítek megtalálni a számodra legmegfelelőbb megoldást, hogy ez a csodás ingatlan a tiéd lehessen.Amennyiben vásárláshoz hitelre is szüksége van független hitel tanácsadónk ingyenesen tud Önnek segítséget nyújtani a legjobb konstrukciók kiválasztásában és a folyamat lebonyolításában.Irodánk kereső ügyfeleinknek teljes körű szolgáltatást nyújt, szakszerű tanácsadással, energetikai tanúsítvány elkészítésével, hitelügyintézéssel és profi ügyvédi segítséggel.Abban az esetben ha az ingatlan felkeltette érdeklődését keressen bizalommal!A HIRDETÉSI ADATOK ÉS AZ ALAPRAJZ TÁJÉKOZTATÓ JELLEGŰEK !

További adatok

Telekterület: 750 m2
Kert mérete: 750 m2
Erkély mérete: 22 m2
Felszereltség: -
Parkolás: -
Kilátás: -
Egyéb extrák:  
-

Hirdető adatai

Hirdető neve: Otthon Centrum
Kapcsolattartó: Nagy Ádám
Hirdető telefonszáma: +36 70 469 3411
Honlap: -