Ház
Origó
HázOrigoval pont a központban

Pest megye, Gyál


 

Ingatlan adatai

Irányár: 112 990 000 Ft
Típus: ház
Kategória: eladó
Alapterület: 122 m2
Fűtés: -
Állapota: új
Szobák száma: 5
Építés éve: 2025
Szintek száma: -

Részletes leírás

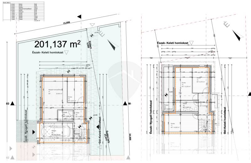
Gyál belterületi, jól megközelíthető részén kínálunk megvételre egy 122 m²-es, új építésű ikerházfelet, 201 m² saját telekrésszel.Az ingatlan kétszintes:Földszint – nappali + étkező, szoba, fürdő, garázsEmelet – 3 hálószoba, fürdő, 9 m²-es terasz-Hőszivattyús fűtés, padlófűtéssel minden helyiségben-Közvetlen átjárás a garázsból a házba-Remek elrendezés, csendes környék, kiváló infrastruktúra

További adatok

Telekterület: 201 m2
Kert mérete: 201 m2
Erkély mérete: 9 m2
Felszereltség: -
Parkolás: -
Kilátás: udvari
Egyéb extrák:  
-

Hirdető adatai

Hirdető neve: Rock Home
Kapcsolattartó: Borsos Balázs
Hirdető telefonszáma: +36 70 467 6795
Honlap: -