Ház
Origó
HázOrigoval pont a központban

Budapest, XIII.kerület


 

Ingatlan adatai

Irányár: 300 000 000 Ft
Típus: lakás (tégla)
Kategória: eladó
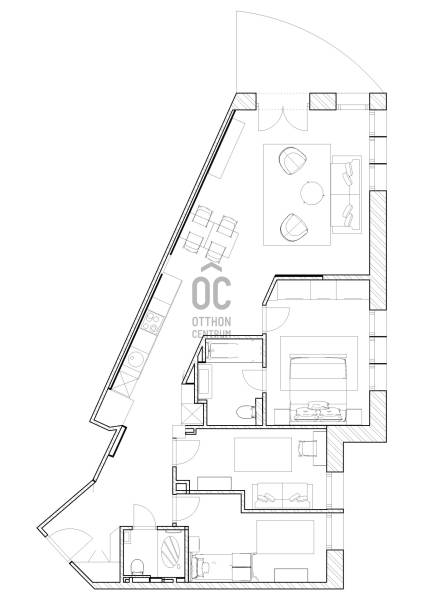
Alapterület: 94 m2
Fűtés: távfűtés
Állapota: -
Szobák száma: 4
Építés éve: 1939
Szintek száma: -

Részletes leírás

Világos, elegáns, otthonos tér a Duna-part szomszédságában a Szent István parknál. Üdv itthon!RÖVID ÖSSZEFOGLALÓBudapest, XIII. kerületében a közkedvelt és keresett Újlipótváros szívében, a Szent István park közvetlen közelében eladó egy különleges hangulatú, 5. emeleti, erkélyes, Dunára rálátással rendelkező, 94 m²-es, teljeskörűen felújított, 3 hálószobás, 2 fürdőszobás, nappali–konyha–étkezős lakás. A terek világosak, a kivitelezés prémium anyagokkal készült, a lakás azonnal költözhető.ÚJLIPÓTVÁROSA lakás Budapest egyik legkedveltebb városrészében, Újlipótvárosban, a Szent István park mellett található. Ez a környék a város egyik legkarakteresebb negyede: elegáns, mégis emberléptékű, ahol a Duna-part, a park és a kávézók világa harmonikusan él együtt.A környék utcáit zöld fák, patinás épületek és letisztult homlokzatok szegélyezik, a háztól néhány lépésre pedig már a Szent István park nyugodt sétányai és játszóterei várják.Néhány perc séta, és megérkezünk a Margitszigethez – a főváros zöld szívéhez, ahol a futópálya, a termálfürdő, a zenélő kút és a Duna illata együtt teremtik meg a szabadság érzését.A Dunapark Kávéház és a Sarki Fűszeres ikonikus találkozóhelyei az újlipótvárosi életnek – reggelihez, baráti beszélgetésekhez, esti borozáshoz.A mindennapi élethez szükséges minden szolgáltatás néhány perc alatt elérhető: pékségek, delikáteszek, gyógyszertárak, iskolák és kisebb üzletek egyaránt a közelben vannak.A közlekedés is kiemelkedő: a Jászai Mari tér, a 4–6-os villamos, a 15-ös és 115-ös busz, valamint a Nyugati pályaudvar gyalogosan is gyorsan elérhető, így a város bármely pontja könnyen megközelíthető.Ez a lokáció azoknak szól, akik értékelik a Duna közelségét, a városi kényelem kényelmes ritmusát és a természet közelségét – mindezt egy időtlen, elegáns környezetben. Aki egyszer itt lakott sosem akar elköltözni innen.VICTOR HUGO 45A rendezett, liftes társasház jó állapotú, kulturált lakóközösséggel. Az épület belső világa is tükrözi Újlipótváros karakterét: klasszikus hangulat modern részletekkel. A lakás az 5. emeleten található, így a panoráma zavartalan – a Duna, Buda és a park fái tárulnak elénk.Névadó – Victor Hugo „A fény nemcsak látni enged, hanem láttat is.”— Victor HugoAz utca névadója, Victor Hugo (1802–1885) a francia irodalom egyik legnagyobb alakja – költő, író, drámaíró, a romantika szimbolikus figurája.Műveiben a szabadság, az emberi méltóság és a belső szépség értékeit hirdette, és mindig a fény, a megértés és a harmónia oldalán állt.Nevét nem véletlenül viseli ez az újlipótvárosi utca: Hugo életműve a gondolat nemességét, az emberi tartást és az esztétikai igényességet képviseli — ugyanazokat az értékeket, amelyeket ez az épület és lakás is tükröz.A Victor Hugo 45, így nem csupán egy cím, hanem kulturális utalás is: egy olyan hely, ahol a város építészeti szépsége és az irodalmi örökség finoman találkozik.OTTHONA lakásban minden részlet a minőségről és az átgondolt harmóniáról árulkodik.A tágas előtér rendezett, letisztult arányaival azonnal megadja az otthon hangulatát, innen nyílnak a gondosan megkomponált, világos terek.A nappali–étkező–konyha egybenyitott, levegős tér, ahol a világos falak, a meleg tónusú tölgy parketta és a visszafogott bézs árnyalatok nyugodt, kiegyensúlyozott hatást keltenek. A teljesen gépesített, egyedi konyhabútor magasfényű felületei és precíz vonalai elegánsan simulnak a térbe, míg a finoman aranyszínű részletek diszkrét fényt visznek a kompozícióba.A teraszra kilépve a látvány azonnal elcsendesít: a Duna kékje, a Szent István park zöld lombjai és a budai hegyek sziluettje harmonikus egységben jelennek meg. A levegő friss, a város zaja szinte megszűnik – csak a tér nyugalma marad.A szülői háló világos és visszafogottan elegáns. A bézs tapéta finom mintázata, a selyemfényű szövetek és a meleg árnyalatú fa bútorok együttese nyugodt, kiegyensúlyozott légkört teremt. A saját, kádas fürdőszoba lágy színei és letisztult formái folytatják ezt a harmóniát – itt minden részlet a pihenést szolgálja.A másik két hálószoba eltérő hangulatot képvisel: az egyik mélykék tapétája elegáns kontrasztot ad, a másik világos tónusaival a nyitottság érzetét kelti. Közös bennük a jó arány, a természetes fény és az otthonos harmónia.A fürdőszobák időtlen árnyalatai, matt felületei és minőségi szerelvényei a modern esztétika és a funkcionalitás tökéletes egyensúlyát tükrözik.A burkolatok tapintása, a levegő friss tisztasága, a finom illatok és a lágy fények együtt adják meg ennek az otthonnak a valódi karakterét.A lakásban minden anyag és szín a tartósságot és a kifinomultságot képviseli: parketta, bársony, üveg és fém – mind visszafogott harmóniában.Ez az otthon nem hivalkodik, hanem csendesen sugároz minőséget: letisztult, elegáns, időtálló.KÖLTSÉGEK ÉS FELSZERELTSÉGA vételár tartalmazza a beépített, gépesített konyhabútort és a fürdőszobai berendezéseket, a többi bútor megállapodás szerint elérhető.A lakás azonnal költözhető, felújításra nincs szükség.KINEK AJÁNLJUK?Ez a lakás tökéletes választás, ha • minőségi, azonnal költözhető otthont keres különleges atmoszférával, • fontos Önnek a páratlan elhelyezkedés és a városi kényelem, • befektetésben gondolkodik – hiszen a lakás gyorsan kiadható, magas hozamot ígér.MEGHÍVÓEgy lakás, ahol a Duna látványa, a park közelsége és a városi elegancia egyensúlyban találkozik. A képek valósak – a látvány mégis túlmutat rajtuk. Jöjjön el, nézze meg személyesen!

További adatok

Telekterület: -
Kert mérete: -
Erkély mérete: 4 m2
Felszereltség: -
Parkolás: -
Kilátás: utcai
Egyéb extrák:  
-

Hirdető adatai

Hirdető neve: Otthon Centrum
Kapcsolattartó: Török Dávid
Hirdető telefonszáma: +36 70 461 9106
Honlap: -