Ház
Origó
HázOrigoval pont a központban

Hajdú-Bihar megye, Hajdúsámson


 

Ingatlan adatai

Irányár: 55 900 000 Ft
Típus: ház
Kategória: eladó
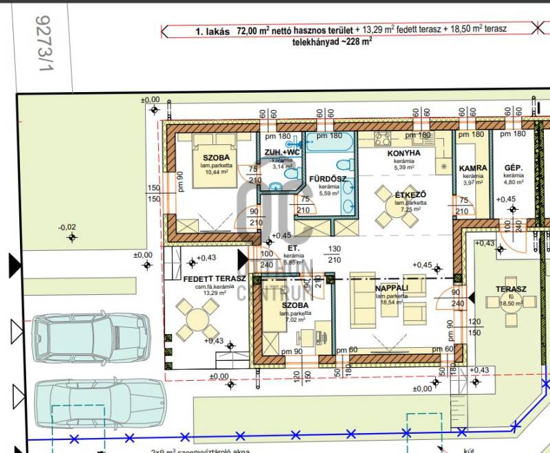
Alapterület: 72 m2
Fűtés: gáz (cirko)
Állapota: új
Szobák száma: 3
Építés éve: 2026
Szintek száma: -

Részletes leírás

A 72 négyzetméteres alapterülettel rendelkező, új építésű házban tágas nappali + 2 szoba és két fürdőszoba vár rád. Az amerikai konyhás nappali a középpontja a lakásnak, ahol barátaiddal és családoddal együtt élvezheted a közös pillanatokat. A 13 és 18,5 négyzetméteres terasz ideális helyszín a reggeli kávézáshoz vagy a nyári grillpartikhoz, miközben a panorámát csodálhatod. A ház fűtése gáz cirkó rendszerrel működik, ami gazdaságos és kényelmes megoldást kínál a hideg téli hónapokban, míg a klíma a nyári melegben biztosítja a kellemes hőmérsékletet.A közel 240 m2 telek tökéletesen alkalmas kertkapcsolatos lakás kialakítására, így a szabadban eltöltött idő mindenki számára élvezetes lehet. Az ingatlan modern dizájnja és praktikus elrendezése lehetővé teszi, hogy a hétköznapokban is maximálisan kihasználhasd a teret. A környék csendes és biztonságos, ideális helyszín a fiatal felnőttek számára, akik értékelik a nyugodt, de mégis élénk városi életet. A közlekedési lehetőségek kiemelkedőek: a városközpont mindössze néhány percre található, így a mindennapi teendőid könnyedén megoldhatóak.A ház jellemzői:- 30-as téglafalazat 15 cm hőszigeteléssel- 3 rétegű műanyag nyílászárók- gáz cirkó padlófűtéssel a szobákban radiátoros hőleadókkal- az ingatlan fúrt kúttal nyert vízzel ellátott, és ingatlanonként külön zárt szennyvíztároló építve- a nappaliban 1 db inverteres klíma kerül- autó beállási lehetőség az udvaron-osztatlan közös terület, ügyvédileg szabályozott használati szerződéssel- az ikerházak egymás mögé épülnek, kazánházzal, gépészeti helyiséggel elválasztva a 2 épületetAz ingatlanra CSOK+, babaváró és piaci hitel igénybevehető!Az Otthon Start hitelnek a település 2026 januártól felel meg.Átadás: 2027. márciusA tömegközlekedés is jól kiépített, így bármikor gyorsan elérheted Debrecent a 4405-ös busszal.A közeli boltok, az újonnan nyíló SBOX bevásárló központban szinte minden elérhető. Ez az ingatlan nemcsak egy otthon, hanem egy lehetőség is a jövőd építésére. Ha befektetési céllal keresel ingatlant, ez a modern ház tökéletes választás lehet, hiszen a környék folyamatosan fejlődik, és a kereslet egyre nő. Ne habozz, hiszen az ilyen lehetőségek gyorsan elkelnek! Kérlek, bátran keresd fel kérdéseiddel, hiszen itt vagyok, hogy segítsek neked a legjobb döntés meghozatalában!

További adatok

Telekterület: 240 m2
Kert mérete: 240 m2
Erkély mérete: 10 m2
Felszereltség: -
Parkolás: -
Kilátás: -
Egyéb extrák:  
-

Hirdető adatai

Hirdető neve: Otthon Centrum
Kapcsolattartó: Rákosné Tímea
Hirdető telefonszáma: +36 70 412 5026
Honlap: -