Ház
Origó
HázOrigoval pont a központban

Budapest, II.kerület


 

Ingatlan adatai

Irányár: 638 517 000 Ft
Típus: kereskedelmi/ipari ingatlan
Kategória: eladó
Alapterület: 808 m2
Fűtés: -
Állapota: -
Szobák száma: -
Építés éve: -
Szintek száma: -

Részletes leírás

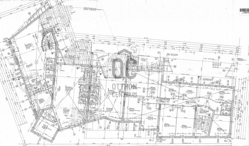
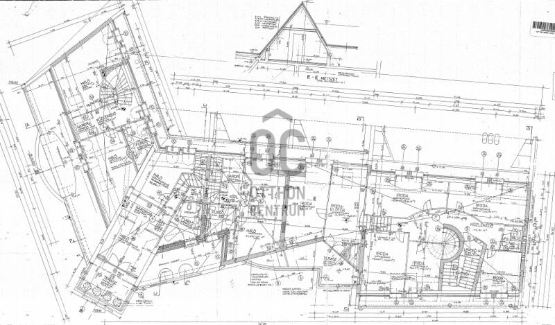
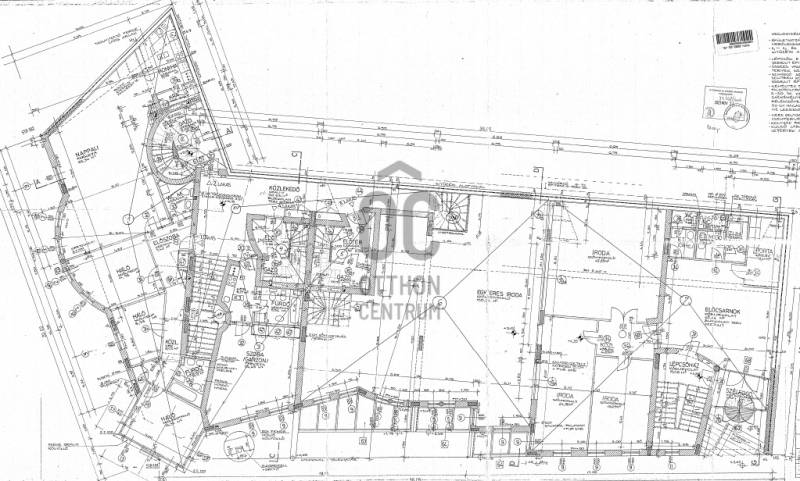
Budapest szívében, a II. kerület népszerű belbudai részén, a Bécsi út és Szépvölgyi út közvetlen közelében kínáljuk eladásra ezt a háromszintes irodaházat.Az ingatlan remek lokációjával és modern infrastruktúrával rendelkezik.Főbb jellemzők:– Cím: 1023 Budapest, Félhévízi utca – Teljes nettó alapterület: 808 nm– Szintek: földszint + 2 emelet– Parkolóhelyek: 2 saját parkolóhely a teremgarázsban, valamint parkolási lehetőség a környező utcákban.– Vételár: 1.650.000 € + ÁfaElhelyezkedés és megközelíthetőség:Az irodaház kiválóan megközelíthető mind autóval, mind tömegközlekedéssel: több buszjárat, villamosvonal, valamint a HÉV közelsége biztosítja az egyszerű és gyors elérhetőséget.A környék infrastruktúrája kiemelkedő, számos szolgáltatás, mint például bevásárlóközpontok, éttermek, bankok és iskolák, sétatávolságra találhatóak.További előnyök: Kiváló láthatóság és elérhetőség a frekventált helyen lévő elhelyezkedésnek köszönhetően. Ideális választás vállalkozásoknak, akik modern, jól megközelíthető székhelyet keresnek. Fejlesztést/átalakítást követően egyéb funkcióra is alkalmas lehet (pl. lakóház, több lakásos társasház)Ne hagyja ki ezt a remek lehetőséget! További információért és megtekintésért kérjük, vegye fel velünk a kapcsolatot!Érdemes gyorsan lépni, mert az ilyen adottságokkal rendelkező irodaházak ritkán kerülnek piacra!Az ingatlan ára nettó ár, további ÁFA terheli, amelyet ÁFA alany vásárló esetén fordított ÁFA szabályai szerint kell bevallani.

További adatok

Telekterület: -
Kert mérete: -
Erkély mérete: -
Felszereltség: -
Parkolás: -
Kilátás: -
Egyéb extrák:  
-

Hirdető adatai

Hirdető neve: Otthon Centrum
Kapcsolattartó: Demeter András
Hirdető telefonszáma: +36 70 716 9611
Honlap: -