Ház
Origó
HázOrigoval pont a központban

Budapest, VII.kerület


 

Ingatlan adatai

Irányár: 562 400 000 Ft
Típus: kereskedelmi/ipari ingatlan
Kategória: eladó
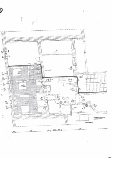
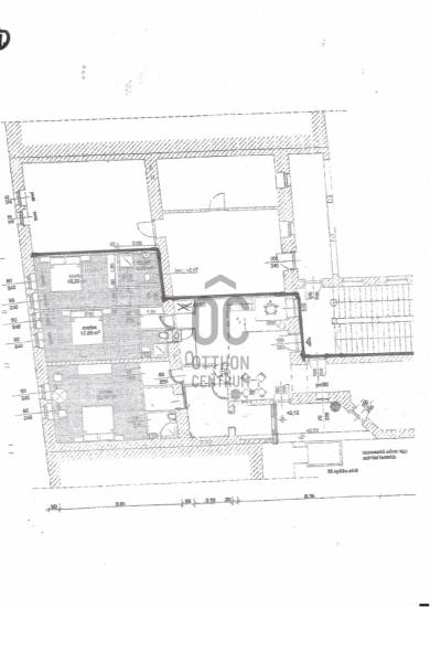
Alapterület: 244 m2
Fűtés: -
Állapota: -
Szobák száma: -
Építés éve: -
Szintek száma: -

Részletes leírás

BEFEKTETŐK FIGYELEM!VI.kerület szívében eladó egy kitűnő minősítéssel rendelkező panzió!150 éves műemlékház első emeletén heiyezkedik el.karbantartott gondozott ház nem rég volt tetőcsere,kert rendbetétele folyamatban van.244 nm alapterülettel,93nm-es galériával,.1989 óta folyamatosan működő szállásadóhely,8 szobával.Szobák kétágyasak légkondicionáltak,wifivel,tv-vel fürdőszobával ellátottak.4 szobában teakonyha is található,3 szoba galériás.Közösségi terek reggeliző kis terasz pihenésre,közös nappali tv nézési lehetőséggel.Teljes berendezéssel ,céggel eladó.Jól bevezetett szálláshely,folyamatosan üzemel.Igényes visszajáró vendégkörrel a világ minden tájáról.Lokáció kifogástalan,Budapest jelentősebb látnivalóit gyalogosan elérhetjük,pld.Opera,Zeneakadémia,Zsinagóga ,Dauna part .Nem beszélve a vendéglátó helyek sokaságáról.Vendégek hálája, a nagyon jó minősítés,a szállásadó portálokon!Tisztelt érdeklödö elöre egyeztetett időpontban hétvégén is mutatható!!!!!!!

További adatok

Telekterület: -
Kert mérete: -
Erkély mérete: -
Felszereltség: -
Parkolás: -
Kilátás: -
Egyéb extrák:  
-

Hirdető adatai

Hirdető neve: Otthon Centrum
Kapcsolattartó: Fazekas Krisztina
Hirdető telefonszáma: +36 70 461 9836
Honlap: -