Ház
Origó
HázOrigoval pont a központban

Pest megye, Törökbálint


 

Ingatlan adatai

Irányár: 329 000 000 Ft
Típus: ház
Kategória: eladó
Alapterület: 168 m2
Fűtés: -
Állapota: új
Szobák száma: 5
Építés éve: 2025
Szintek száma: -

Részletes leírás

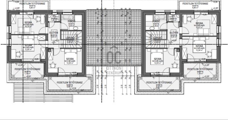
ÁLOM OTTHON Törökbálint legexkluzívabb privát utcájában ✨Prémium minőségű, panorámás, teljesen szeparált ikerház – kulcsrakész kivitelbenHa modern, gondosan megtervezett otthont keresel Budapesttől pár percre, zöldövezeti környezetben — akkor ez a ház neked épül!Nem alapár — az összes felsorolt felszereltséget tartalmazza!Telekterület: 648 m² saját, intim kertLakótér: 150 m²Földszinti terasz: 40 m²Emeleti tetőterasz: 23 m²Tetőtér + tároló: 55 m² (szigetelt, parkettázott)Átadás: 2025. november 30-ig Exkluzív lokációAz egyik legkeresettebb, aszfaltozott, rendezett, panorámás utcában.Déli tájolás = fényárban úszó terek ☀️A látványtervek egy lehetséges berendezést szemléltetnek.Helyiségek kialakításaFöldszint – 102,1 m² + 40 m² terasz**• Tágas nappali + konyha + étkező – 37,35 m²• Hálószoba + gardrób + fürdő• Kamra• Háztartási helyiség• Vendég WC• Saját, galériás garázs (19,9 m² + ~15 m² tároló)Emelet – 47,78 m² + 23,1 m² tetőterasz• 3 hálószoba — mindegyik saját terasszal• Fürdő + külön WC Műszaki tartalom — Minden benne van az árban! ⭐✅ 13 kW hőszivattyú✅ Padlófűtés + mennyezeti hűtés-fűtés + frisslevegő rendszer✅ Kandalló előkészítés, kémény és engedély✅ Redőnyök / zsaluziák✅ Napelem előkészítés✅ Legrand Valena Allure kapcsolók, kiemelt elektromos felszereltség✅ Külső kerítés + kert előkészítve✅ Térkövezett utca (privát jelleg)✨ Választható belső burkolatok: 10.000 Ft/m² + ÁFA keretig✨ Választható belső ajtók: 100.000 Ft/db + ÁFA keretigMiért ez a ház?✔ igényes, biztonságos, csendes utca✔ kiváló elosztás, élhető terek✔ prémium gépészet, energiahatékonyság✔ már most választható belső megoldások

További adatok

Telekterület: 648 m2
Kert mérete: 648 m2
Erkély mérete: -
Felszereltség: -
Parkolás: -
Kilátás: -
Egyéb extrák:  
-

Hirdető adatai

Hirdető neve: Otthon Centrum
Kapcsolattartó: Pongrácz Rita
Hirdető telefonszáma: +36 70 388 6131
Honlap: -