Ház
Origó
HázOrigoval pont a központban

Pest megye, Budaörs


 

Ingatlan adatai

Irányár: 220 000 000 Ft
Típus: lakás (tégla)
Kategória: eladó
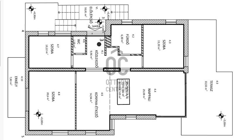
Alapterület: 105 m2
Fűtés: -
Állapota: -
Szobák száma: 4
Építés éve: 2018
Szintek száma: -

Részletes leírás

Kinek ajánlomEzt az ingatlant azoknak ajánlom, akik az otthont nem pusztán élettérnek, hanem harmóniát adó helynek tekintik.Akik szeretik, ha reggel a napfény tölti meg a szobákat, ha este a városi fényekkel a horizonton pihennek meg, és fontos számukra a nyugalom, a panoráma és a minőség.Ideális választás családoknak, pároknak, vagy akár elfoglalt szakembereknek, akik egy rendezett, zöldövezeti környezetben szeretnének élni — kompromisszumok nélkül.ElhelyezkedésAz ingatlan Budaörs egyik legkedveltebb, dombos részén található, zöldövezeti, mégis kiválóan megközelíthető környezetben.A városközpont, valamint a legfontosabb bevásárlási lehetőségek – IKEA, Auchan, Tesco, Decathlon, Rossmann, gyógyszertárak – mind néhány perces autóútra elérhetők.Több iskola, óvoda és sportlétesítmény is a közelben található, a tömegközlekedés pedig kényelmesen használható: helyi buszjáratok biztosítanak kapcsolatot a budaörsi központ és Budapest irányába.Az M1–M7 autópályák csomópontja mindössze pár percre található.A környék hangulataA budaörsi dombvidék egyik legcsendesebb és legápoltabb része.A környék atmoszférája nyugalmat és természetközelséget sugároz, miközben modern, igényes családi házak és új építésű társasházak veszik körül.A környék ideális választás azoknak, akik szeretik a reggeli sétákat, a friss levegőt, a csendes esték békéjét, és akik számára fontos, hogy a panoráma valóban elvehetetlen maradjon.Az ingatlanrólA lakás egy kétlakásos társasház felső szintjén helyezkedik el – így teljes intimitást és privát életteret biztosít.A ház elhelyezkedéséből adódóan 180 fokos, körpanorámás kilátás tárul elénk, amely a nappaliból, a teraszról és a kertből is élvezhető.A lakás különlegessége a 33 m²-es, üvegkorlattal ellátott panorámaterasz, ahol minden napszakban más arcát mutatja a kilátás.A tágas, egybenyitott nappali–étkező–konyha térben hatalmas üvegfelületek engedik be a fényt, így a lakás egész nap napfényben úszik.A három hálószoba közül a legnagyobb közvetlen kertkapcsolattal rendelkezik.A házhoz privát úton lehet feljutni, ami biztonságot és nyugalmat ad, a környezet pedig rendezett és igényes.Műszaki felszereltségÉpítés éve: 2018Fa nyílászárók, prémium hőszigetelésselHőszivattyús hűtés–fűtés rendszer, alacsony fenntartási költségekkelBeépített konyhabútor és beépített gardróbszekrényekFrissen tisztított, üres állapot, azonnal költözhetőModern, igényes kivitelezés, időtálló anyaghasználatParkolás és megközelítésA lakáshoz tartozik egy 30 m²-es, zárható, privát garázs, amely kizárólag az ingatlan tulajdonosának használatában van.Ezen felül a telken belül további 2–3 felszíni beállóhely is rendelkezésre áll.A ház privát úton közelíthető meg, ami exkluzivitást és biztonságot nyújt a lakók számára.Ez az otthon egyszerre sugároz letisztultságot, harmóniát és eleganciát – egy hely, ahol minden részlet a kényelmet és a nyugalmat szolgálja.Ha felkeltette az érdeklődését, keressen bizalommal, örömmel mutatom be személyesen is ezt a különleges ingatlant.

További adatok

Telekterület: -
Kert mérete: -
Erkély mérete: 51 m2
Felszereltség: -
Parkolás: -
Kilátás: kertre néző
Egyéb extrák:  
-

Hirdető adatai

Hirdető neve: Otthon Centrum
Kapcsolattartó: Besenyei Brigitta
Hirdető telefonszáma: +36 70 412 4431
Honlap: -