Ház
Origó
HázOrigoval pont a központban

Heves megye, Hatvan


 

Ingatlan adatai

Irányár: 29 900 000 Ft
Típus: lakás (tégla)
Kategória: eladó
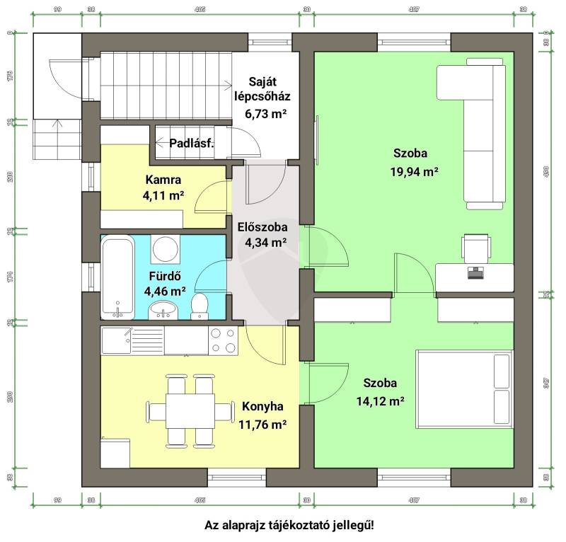
Alapterület: 62 m2
Fűtés: egyéb
Állapota: -
Szobák száma: 2
Építés éve: 1960
Szintek száma: -

Részletes leírás

*** Új-Hatvan részén eladó 1. emeleti lakás kedvező áron!***Csend, kis lakóközösség, praktikus elosztás. Ha szeretnéd, hogy mind a 3 tulajdonság meg legyen az ÚJ OTTHONODBAN, akkor jó helyen jársz.Új-Hatvanban a TESCO-hoz közel eladó CSENDES mellékutcában egy 62 m2-es, 1. emeleti téglából épült lakás. A társasház külső homlokzata felújításra szorul, viszont nagy ELŐNYE, hogy csak 4 lakás lett kialakítva, amelyekhez tartozik egy zárható társasházi kert KOCSIBEÁLLÓVAL. A lakást egy saját használatú kerten keresztül lehet megközelíteni egy önálló lépcsőházon keresztül, ahol csak ez az egy ingatlan található. A kényelmet szolgálja 2 külön bejáratú tágas szoba, egy tágas konyha, fürdőszoba és egy kamra, amelyek az előszobából nyílnak. A belső állapot igény szerinti korszerűsítést igényel.Az elmúlt pár évben HŐSZIGETELT NYÍLÁSZÁRÓK kerültek beépítésre. A fűtésről egyedi mérésű gázkazán gondoskodik. Közös költség nincs.Buszpályaudvar, vasútállomás 10-15 percen belül elérhető. M3-as autópálya 3 perc. Bosch és egyéb munkahelyek, IPARI PARK, bevásárló központ szintén 5 percen belül elérhetőek.Amennyiben szeretnél még KEDVEZŐ ÁRON hozzájutni az első lakásodhoz vagy BEFEKTETÉSEDHEZ, akkor ez egy kitűnő lehetőség a vásárlásra. Gyere és nézd meg mihamarabb!

További adatok

Telekterület: -
Kert mérete: -
Erkély mérete: -
Felszereltség: -
Parkolás: -
Kilátás: utcai
Egyéb extrák:  
-

Hirdető adatai

Hirdető neve: Ingatlanmentor powered by Rock Home
Kapcsolattartó: Horváth Tibor
Hirdető telefonszáma: +36 70 467 6871
Honlap: -