Ház
Origó
HázOrigoval pont a központban

Hajdú-Bihar megye, Hajdúsámson


 

Ingatlan adatai

Irányár: 63 900 000 Ft
Típus: ház
Kategória: eladó
Alapterület: 76 m2
Fűtés: -
Állapota: új
Szobák száma: 4
Építés éve: 2025
Szintek száma: -

Részletes leírás

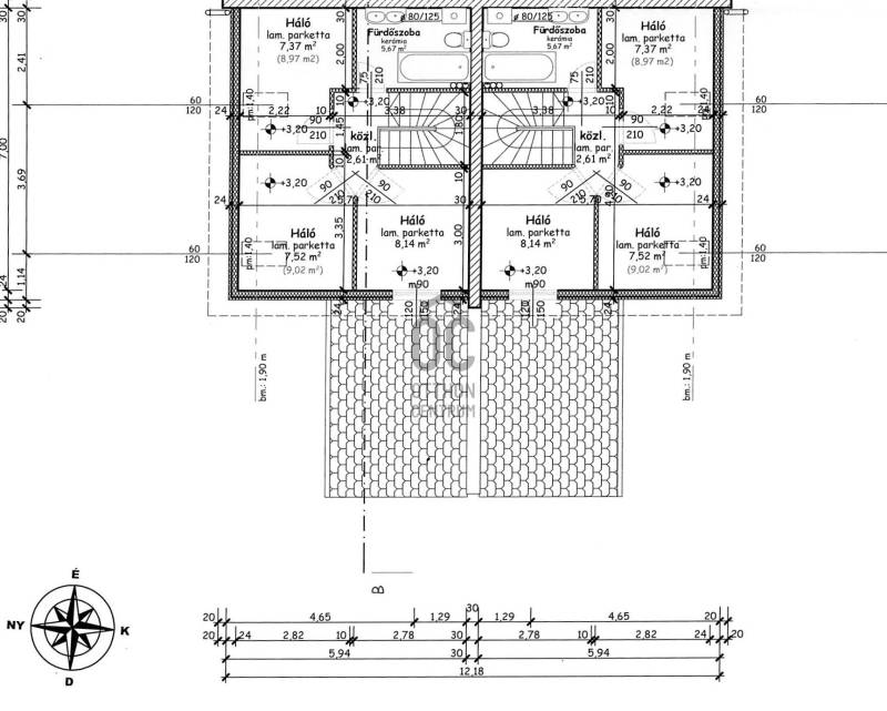
Sámsonkertben építés alatt – új, tágas 4 szobás ház várja Önt! AKCIÓS áron január 15-ig!Most egy igazán különleges lehetőséget kínálunk számodra Sámsonkert városrészben. Ez az új építésű ház nem csupán egy ingatlan, hanem egy életstílus, amely tökéletesen illeszkedik a modern fiatalok igényeihez. Az ingatlan alapterülete 80 négyzetméter, amelyben négy tágas szoba és két fürdőszoba található. A terasz mérete 12,47 négyzetméter, ahol a reggeli kávédat vagy a barátaiddal eltöltött estéidet élvezheted a friss levegőn. A házban, a megújuló hőszivattyús fűtési rendszernek köszönhetően nemcsak gazdaságos, hanem környezetbarát megoldást is kínál. A klímaberendezés pedig biztosítja, hogy a nyári hónapokban is kellemes hőmérsékletet varázsolhass otthonodba. Az ingatlan környezete csendes és biztonságos, ideális helyszín a nyugodt hétköznapokhoz és a baráti összejövetelekhez. A környék adottságai lenyűgözőek: a közlekedési lehetőségek kiválóak, hiszen autóval könnyen megközelíthető a város központja, ahol számos bolt, étterem és szórakozási lehetőség vár rád. A tömegközlekedés is jól kiépített, buszmegálló 5 perc sétára található így a város többi részéhez is könnyedén eljuthatsz.A lakás jellemzői:- fémszerkezet teherhordó falakkal és hanggátló elválasztó téglafalakkal épült- nettó lakótér 76 m2 mely magában foglal 4 lakószobát, 2 fürdőszobát és nappalit külön- a lakásokhoz osztatlan közös megosztással került kialakításra a saját telekrész, ezen ingatlanhoz okirat szerint 297 m2 csatlakozik- a lakások külön mérő órákkal felszereltek (Villany óra, külön hőszivattyú, fúrt kút külön szivattyúval, lakásonként 10m3-es zárt szennyvíz tározó és klíma berendezés 3,5 kW kapacitással)- a lakásokban mindenütt padlófűtés van kiépítve- nyílászárók 3 rétegű üvegezéssel ellátott műanyag ablakok, a tetőtérben fa nyílászárók- padlástérben 30 cm szigetelés, a homlozaton 15 cm hőszigetelés készült.- átadás: 2026 március- alapterület 76 m2+ 3,45 m2 kazánház+ 12, 47 m2 teraszAz ingatlan babaváróval és CSOK+-al vásárolható!Az Otthon Start hitel 2026. januártól igényelhető az ingatlanra!Ha szeretnél többet megtudni erről a kivételes ingatlanról, vagy kérdéseid lennének a vásárlással kapcsolatban, bátran keresd fel a hirdetésünket! Bizalommal állunk rendelkezésedre, hogy segítsünk megtalálni álmaid otthonát vagy befektetési lehetőségedet. Ne hagyd ki ezt a páratlan ajánlatot, hiszen ez a lehetőség gyorsan el fog tűnni a piacon!

További adatok

Telekterület: 297 m2
Kert mérete: 297 m2
Erkély mérete: 12 m2
Felszereltség: -
Parkolás: -
Kilátás: -
Egyéb extrák:  
-

Hirdető adatai

Hirdető neve: Otthon Centrum
Kapcsolattartó: Rákosné Tímea
Hirdető telefonszáma: +36 70 412 5026
Honlap: -