Ház
Origó
HázOrigoval pont a központban

Somogy megye, Szántód


 

Ingatlan adatai

Irányár: 249 000 000 Ft
Típus: lakás (tégla)
Kategória: eladó
Alapterület: 63 m2
Fűtés: házközponti egyedi méréssel
Állapota: -
Szobák száma: 3
Építés éve: 2018
Szintek száma: -

Részletes leírás

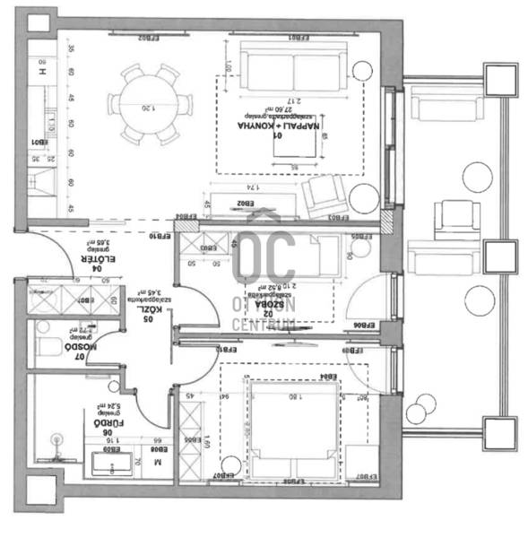
BalaLake egy életérzés, amelyet a család minden tagja hazavihet a szívében.Közvetlen a Balaton partján elhelyezkedő komplexum, amely zárt területen helyezkedik el, 0 - 24 órás portaszolgálattal, sorompós beléptető rendszerrel van kiépítve.Az ingatlan : lakás : 63 m2 - es + 15 m2 - es terasszal rendelkezik, a liftes társasház 1. emeletén helyezkedik el, Karibi hangulatú belsőépítészeti megoldásokkal, szállodai felszereltségű, exkluzív szinvonalú, teljesen bútorozott, gépesített, amelyet a vételár tartalmaz.Mesés balatoni panorámával rendelkezik, az ingatlan közvetlen vízparti, saját stranddal rendelkezik, vizisportolási lehetőség, játszóház, wellness, csupán 50 méterre található.A komplexum területén található még étterem, Mangoo bár, élőzenés vacsoraestékkel, E - bike kölcsönzési lehetőség, vizisportok, gyerekbarát, biztonságos játszótér, homokozó, hinta, mászóka, bizonyos napokon szakképzett animátor szórakoztatja a gyerekeket, amíg a szülők kikapcsolódhatnak, pihenhetnek.Itt minden egy helyen van, testet - lelket felfrissítő családi, baráti kikapcsolódáshoz.A lakásról : egy légtérben tágas konyha - étkező - nappali, 2 szoba, külön fürdő, wc , és a 15 m2 - es terasz, amely az udvarra néz, de a Balaton is jól látszódik.Fűtése : egyedileg szabályozható, mérhető házközpontú fűtés padló hőleadóval, + mennyezet hűtés + hűtő - fűtő klíma.SMART okos otthon kialakítású, távvezérléssel működik majdnem minden. Az ingatlan tulajdon, természetesen a tulajdonos rendelkezésére áll az év minden napjában, de a nem használatos időszakban ha szeretnék az üzemeltető hasznosítjaA lakáshoz egy teremgarázs tartozik, vásárlása kötelező, ára : 15 Mft

További adatok

Telekterület: -
Kert mérete: -
Erkély mérete: 15 m2
Felszereltség: -
Parkolás: -
Kilátás: kertre néző
Egyéb extrák:  
-

Hirdető adatai

Hirdető neve: Otthon Centrum
Kapcsolattartó: Tóth Ferenc
Hirdető telefonszáma: +36 70 716 9076
Honlap: -