Ház
Origó
HázOrigoval pont a központban

Heves megye, Gyöngyöshalász


 

Ingatlan adatai

Irányár: 59 900 000 Ft
Típus: ház
Kategória: eladó
Alapterület: 97 m2
Fűtés: -
Állapota: új
Szobák száma: 5
Építés éve: 2025
Szintek száma: -

Részletes leírás

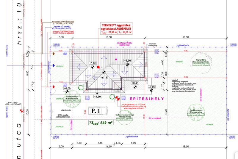
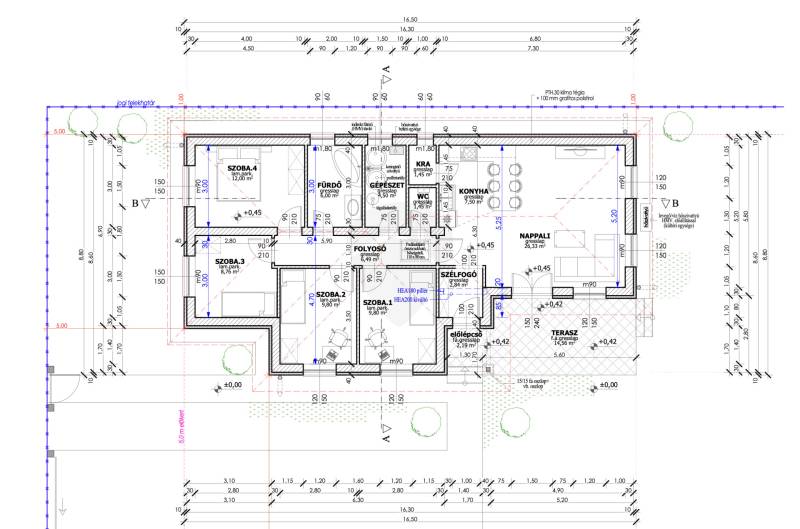
Eladó prémium családi otthon Gyöngyöshalászon! AZ INGATLAN 70%-os készültségben van!ÚJ LAKÓPARKBAN, ZÁRT KÖZÖSSÉGGEL!Gyöngyöshalászon, a fejlődő Toldi utcában eladásra kínálok egy nettó 93 m²-es, modern családi házat, amely 3 szobával és egy tágas nappalival biztosít kényelmes életteret. Az új lakópark sorompóval és portaszolgálattal védett bejárattal épül, így nyugodt, biztonságos környezetet kínál lakóinak.Minőségi építési megoldások, energiatakarékos kialakítás✔ Falazat: Porotherm P30N+F tégla, betonkoszorúval és fa födémszerkezettel✔ Szigetelés:✔ Lábazat: 10 cm lépésálló polisztirol✔ Homlokzat: 10 cm grafitos hőszigetelés✔ Födém: 25 cm ásványgyapot✔ Nyílászárók: 3 rétegű üvegezésű, 6 légkamrás műanyag ablakok✔ Fűtés: Levegő-víz hőszivattyús rendszer – alacsony fenntartási költségek, fenntartható megoldásSzemélyre szabható belső térA belső kialakítás igény szerint választható burkolatokkal és szaniterekkel készül:✅ Hidegburkolat: 4.000 Ft/m²✅ Melegburkolat: 4.000 Ft/m²✅ Beltéri ajtók: 30.000 Ft/db✅ Fürdőkád: 40.000 Ft✅ Csaptelepek: 15.000 Ft/dbMagasabb árkategóriájú termékek választására is van lehetőség!Tökéletes választás minden korosztály számára✔ Modern kialakítás és energiatakarékos technológiák✔ Családosok, fiatalok és idősebbek számára egyaránt ideális otthon✔ A zárt lakópark exkluzív környezetet biztosít✔ Kiváló közlekedési lehetőségek✔ Az építtető korábbi projektjei megtekinthetők referenciaként!✔ Ne maradjon le erről a különleges lehetőségről! Érdeklődjön most, és találja meg álmai otthonát!

További adatok

Telekterület: 800 m2
Kert mérete: 800 m2
Erkély mérete: -
Felszereltség: -
Parkolás: -
Kilátás: panorámás
Egyéb extrák:  
-

Hirdető adatai

Hirdető neve: Intor Ingatlan Powered By RH
Kapcsolattartó: Lőrinc Anita
Hirdető telefonszáma: +36 70 467 6726
Honlap: -