Ház
Origó
HázOrigoval pont a központban

Pest megye, Szigetbecse


 

Ingatlan adatai

Irányár: 89 900 000 Ft
Típus: ház
Kategória: eladó
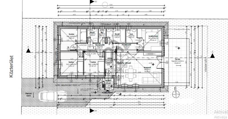
Alapterület: 99 m2
Fűtés: -
Állapota: új
Szobák száma: 5
Építés éve: 2024
Szintek száma: -

Részletes leírás

A ház minimális rezsivel fenntartható, energetikai besorolása AA.Kényelmes, és élhető, praktikus terekkel, duplakomfortos, nettó 98,81 nm, bruttó 124,52 nm nagyságú ingatlan, a telek mérete 721 nm.Főbb műszaki paraméterek:-30-as N+F Porotherm tégla-12 cm homlokzati szigetelés-Födémszigetelés: 20cm nyitott cellás purhab szigetelés- 3 rétegű műanyag nyílászárók redőnnyel, szúnyoghálóval, teraszon alumínium motoros redőnnyel felszereltek-Hőszivattyú: Technik cool pro split levegő-víz hőszivattyú, 8kw, 1 fázisú, 230V padlófűtéssel, fan coil hűtéssel. Technik cool fan coil, magasoldalfali, kétcsöves kivitel, 4,7kw-riasztó vezetékelve-térkövezett járda-térkövezett autóbeállóReferencia házak megtekinthetők Bugyin, Ráckevén, Délegyházán is.Megbízható kivitelező, sok referenciával, szép munkával, saját tőkével rendelkezik!Az ingatlan céges kivitelezésben épül, így babaváró,CSOK hitel igénybe vehető, 5 % Áfa visszaigényléssel és 4 % illetékmentesen megvásárolható ingatlan.Hitelben, Csok-ban ingyenes segítséget biztosítunk.Várható átadás 2025-07 hóTovábbi információért kérem keressen.

További adatok

Telekterület: 721 m2
Kert mérete: 721 m2
Erkély mérete: -
Felszereltség: -
Parkolás: -
Kilátás: -
Egyéb extrák:  
-

Hirdető adatai

Hirdető neve: Otthon Centrum
Kapcsolattartó: Nemes Mária
Hirdető telefonszáma: +36 70 716 9176
Honlap: -