Ház
Origó
HázOrigoval pont a központban

Heves megye, Markaz


 

Ingatlan adatai

Irányár: 55 000 000 Ft
Típus: ház
Kategória: eladó
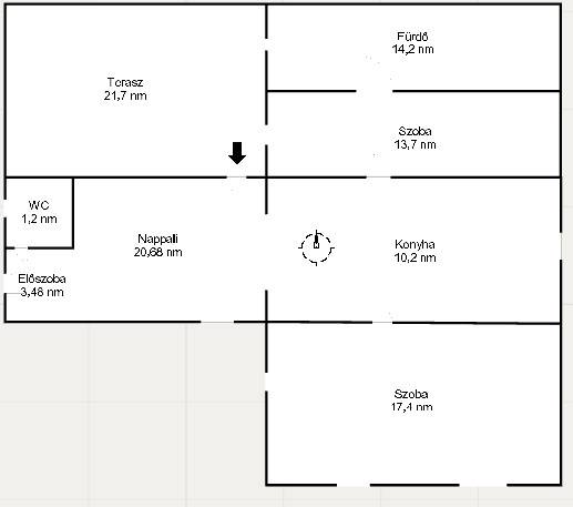
Alapterület: 81 m2
Fűtés: gáz (cirko)
Állapota: -
Szobák száma: 2
Építés éve: 1960
Szintek száma: -

Részletes leírás

Ha családosoknak keresel ideális otthont, akkor ez a kiváló állapotú, családi ház Markaz szívében tökéletes választás lehet számodra! Az ingatlan 80.86 nm alapterületű, és egy 1060 nm-es telken helyezkedik el, ami bőséges teret biztosít a gyerekeknek a szabadban való játékhoz, valamint a családi összejövetelekhez.A házban két tágas szoba található, melyek világosak és modern kialakításúak, így a napfény mindig beragyogja a teret. A tágas nappali ideális helyszín a közös családi programokhoz, míg a 21.7 nm-es terasz tökéletes helyszín a reggeli kávézáshoz vagy a nyári baráti összejövetelekhez.A környék ellátottsága kiváló, a közeli boltok, óvoda és iskola mind pár percnyi sétára találhatóak, így a mindennapi élet kényelmesen megoldható. Ha a kávé kedvelők közé tartozol, Markazon nyílt Várvölgy Caffe és Pékség ennek a szenvedélyednek hódolhatsz akár minden nap. A közlekedés is kitűnő, hiszen a közeli buszmegállóból könnyen elérhető a város, így nemcsak autóval, hanem tömegközlekedéssel is gyorsan és egyszerűen közlekedhetsz.A csendes, hegyvidéki környezet pedig garantálja a nyugodt életvitelt, távol a város zajától. Ez az ingatlan Falusi Csok kompatibilis, így ha családalapításban gondolkodsz, vagy befektetési lehetőséget keresel, akkor ez a ház kiváló választás. A telek mérete lehetőséget ad a bővítésre, így ha szeretnél egy saját medencét vagy kerti pihenőt kialakítani, az sem akadály. A kerti tároló pedig praktikus megoldást kínál a kerti eszközök és a gyerekjátékok tárolására. Kisállattal is költözhetsz, így a család minden tagjának helyet biztosíthatsz. Az ingatlan tehermentes, és az egyedi tervezés miatt igazán különleges otthonra lelhetsz benne. A rendezett kert pedig nemcsak szép látványt nyújt, hanem egy kellemes helyszínt is biztosít a szabadidős tevékenységekhez. Ne habozz, ha kérdéseid lennének, vagy szeretnéd megtekinteni ezt a csodás ingatlant, bátran keress meg! Az ingatlan piaca folyamatosan változik, és ez a felkapott környék hamarosan új lakóira talál. Élj a lehetőséggel, és tedd meg az első lépést a családod új otthona felé!

További adatok

Telekterület: 1 060 m2
Kert mérete: 1 060 m2
Erkély mérete: 22 m2
Felszereltség: -
Parkolás: -
Kilátás: -
Egyéb extrák:  
-

Hirdető adatai

Hirdető neve: Otthon Centrum
Kapcsolattartó: Nagy Zoltánné Zsani
Hirdető telefonszáma: +36 70 469 3286
Honlap: -