Ház
Origó
HázOrigoval pont a központban

Heves megye, Eger


 

Ingatlan adatai

Irányár: 219 000 000 Ft
Típus: ház
Kategória: eladó
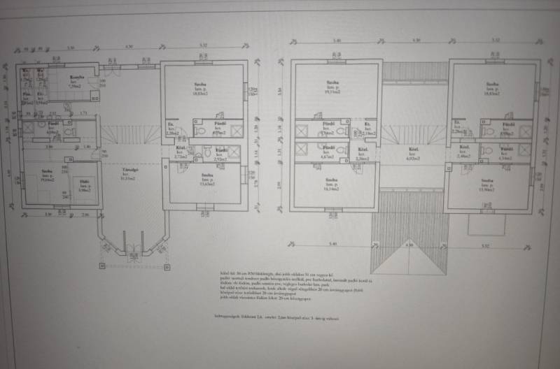
Alapterület: 263 m2
Fűtés: elektromos
Állapota: -
Szobák száma: 7
Építés éve: 1969
Szintek száma: -

Részletes leírás

Borvidéki luxus Eger szívében!A Szépasszony-völgy szívében, egy csodálatos, 5649 nm-es, belterületi telekkel körülölelve áll ez az igényesen, teljeskörűen felújított, berendezett ház, ahol a tér, a privát szféra és az elegancia adnak egy új életstílust!Tapasztalja meg a borvidék nyugalmát és a prémium életérzést!Az impozáns ingatlan tágas fogadótérrel rendelkezik, jelenleg nappali-étkezőként funkcionál ez a hatalmas tér, mely az otthon lelke is egyben. Emellett egy jól felszerelt konyha segíti a mindennapokat.A házban 7 külön nyíló szoba található, mindegyik saját fürdőszobával, mely ritka, nagy érték. A főépület mellett egy hangulatos terasszal rendelkező faház is rendelkezésre áll a tulajdonosok számára, mely a pihenés, a kerti sütögetés megfelelő színtere is egyben.A birtok ideális családnak, többgenerációs együttéléshez, vagy prémium vendégváró életformához. Főbb előnyök:-Teljes felújítás 2018-ban (közműcsere, fűtéskorszerűsítés, napelemrendszer kiépítése, burkolatcsere, fürdőszobák felújítása, ablakok cseréje)-Azonnal birtokba vehető, berendezéssel együtt, melyet az ár tartalmaz-Elektromos kapu, kamerarendszer, riasztóberendezés-Új tető, födémszigetelés-Napelemes rendszer, elektromos fűtés-Tégla épület-Gondozott, bekerített telek parkosított udvarral-Kocsi beálló, hatalmas, füvesített privát térEz a 263 nm-es ingatlan egyszerre elegáns otthon és értékálló befektetés Eger egyik legikonikusabb városrészében!Irányár: 219 000 000.- FtBudapesti vagy veszprémi igényes lakás értékegyeztetéssel beszámítható.

További adatok

Telekterület: 5 649 m2
Kert mérete: 5 649 m2
Erkély mérete: 3 m2
Felszereltség: -
Parkolás: -
Kilátás: panorámás
Egyéb extrák:  
-

Hirdető adatai

Hirdető neve: GDN Ingatlanhálózat
Kapcsolattartó: Simon Erika
Hirdető telefonszáma: +36-70-948-4828
Honlap: -