Ház
Origó
HázOrigoval pont a központban

Szabolcs-Szatmár-Bereg megye, Szamoskér


 

Ingatlan adatai

Irányár: 25 000 000 Ft
Típus: ház
Kategória: eladó
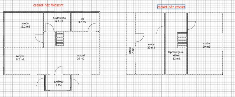
Alapterület: 105 m2
Fűtés: gáz (cirko)
Állapota: -
Szobák száma: 3
Építés éve: 2000
Szintek száma: -

Részletes leírás

Eladó ez a gazdálkodásra, alkalmas tanya , amely 5500 m2-es területen helyezkedik el.Két lakóháza közül a régebbi , tornácos , vályog építésű, szerkezetileg , statikailag teljesen jó állapotban van.A másik lakóépület 1986-os téglaépítésű.Villany , víz, gáz bevezetve. Fűtése központi gáz illetve vegyes kazánnal megoldott.A tanya csendes falusi környezetben , csodálatos panorámával , a töltés mellett helyezkedik el.Kiválóan alkalmas arra , ha valaki falusi turizmust szeretne működtetni, vagy egy nyereséges vállalkozást üzemeltetni.

További adatok

Telekterület: 1 189 m2
Kert mérete: 1 189 m2
Erkély mérete: -
Felszereltség: -
Parkolás: -
Kilátás: -
Egyéb extrák:  
-

Hirdető adatai

Hirdető neve: Otthon Centrum
Kapcsolattartó: Gyöngyösi Sándor
Hirdető telefonszáma: +36 70 469 3486
Honlap: -