Ház
Origó
HázOrigoval pont a központban

Hajdú-Bihar megye, Debrecen


 

Ingatlan adatai

Irányár: 137 465 000 Ft
Típus: ház
Kategória: eladó
Alapterület: 137 m2
Fűtés: -
Állapota: új
Szobák száma: 5
Építés éve: 2026
Szintek száma: -

Részletes leírás

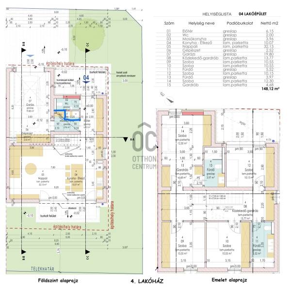
4. lakóház Br. 155 nm, nappali + 4 hálós:Földszint:- amerikaikonyhás nappali étkezővel (42 nm), teraszkapcsolattal- mosókonyha (4 nm)- vendég WC- garázs gépészettel (22 nm)- kertkapcsolat (160 nm)Emelet:- szülői háló gardróbbal és fürdőszobával (21 nm)- 3 hálószoba ( 10, 11, 11 nm)- fürdőszoba (6 nm)- közlekedő gardróbbal (14 nm)Projekt bemutatásaDebrecen kertvárosias részén a Vargakertben már épül a 10 lakóegységű lakópark, melyek ikerház jelleggel és sorház beépítéssel kerülnek átadásra.Az önálló lakóházak alkalmasak a START HITELRE és CSOK + támogatásra is.A hirdetési árak a készpénzes ügyfelekre vonatkoznak!Most bevezető áron választhat kínálatunkból!A földszint + emelet kialakítású ingatlanok nappali + 3 és nappali + 4 hálószobával rendelkeznek.Mindegyik lakóegység duplakomfortos, garázzsal és tárolóval ellátott, valamint kertkapcsolatos.Műszaki tartalma:- Porotherm 30 N+F falazat- grafitos hőszigetelés- nyílászárók 3 rétegű, argongázzal töltöttek- hidegburkolat 8.500.-, meleg 6.000.-Ft/nm áron választhatóak- fűtés és használati melegvíz hőszivattyúval biztosított (padlófűtés)- hűtés 2 db klímával megoldott.Amennyiben szeretne egy új, energiatakarékos otthont kedvező ár/érték arányban vásárolni, kertvárosi környezetben, ne várjon, hívjon a további részletekért!Banki kollégánk teljeskörű ügyintézéssel, díjtalanul segíti Önt, hogy vásárlás sikeres legyen, bármely banki konstrukcióval!

További adatok

Telekterület: 480 m2
Kert mérete: 480 m2
Erkély mérete: 7 m2
Felszereltség: -
Parkolás: -
Kilátás: -
Egyéb extrák:  
-

Hirdető adatai

Hirdető neve: Otthon Centrum
Kapcsolattartó: Némethné Zsuzsa
Hirdető telefonszáma: +36 70 412 3861
Honlap: -