Ház
Origó
HázOrigoval pont a központban

Pest megye, Mogyoród


 

Ingatlan adatai

Irányár: 398 000 000 Ft
Típus: kereskedelmi/ipari ingatlan
Kategória: eladó
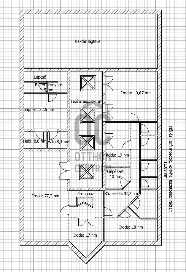
Alapterület: 773 m2
Fűtés: -
Állapota: -
Szobák száma: -
Építés éve: -
Szintek száma: -

Részletes leírás

Eladásra kínálom ezt a Mogyoródi üzleti célú felhesználásra alkalmas létesítményt.-Az ingatlan a 90-es évek végén épült téglából, a főépület nettó 773 négyzetméter + 356 négyzetméternyi teremgarázs tartozik az ingatlanhoz.-A telek mérete 3583 nm.-Recepcióval, közös helységekkel, mosdókkal és egy külön lakással rendelkezik.-LKE (lakóövezeti) besorolású területen fekvő, kiválóan alkalmazható ingatlan akár kissebb lakásokra is felosztható, vagy labornak, egyéb más üzleti tevékenységre is használható.Jellemzők:-3x80 amper áramerősség -Gázfűtés (cirkó)-Privát parkolók-Főút mellett helyezkedik el - könnyen megközelíthető-Önálló rendeltetési egység-Gyorsan költözhető-Átlagos / használatra alkalmas állapotban van.-Per és tehermentesTömegközlekedése kiváló:-950 méterre van a Mogyoródi Hév állomás, Gödöllő-Budapest vonal. -Buszmegálló a közvetlen közelben.-M3 autópályára való felhajtás 300 méteren belül. Az ingatlan cégtulajdonban van, az irányár: 398.000.000ft + ÁFA (fordított ÁFÁ-s cég).Megtekintés előtt időpont egyeztetés szükséges.Várom hívását a hét bármely napján!

További adatok

Telekterület: -
Kert mérete: -
Erkély mérete: -
Felszereltség: -
Parkolás: -
Kilátás: -
Egyéb extrák:  
-

Hirdető adatai

Hirdető neve: Otthon Centrum
Kapcsolattartó: Cseresznye Ádám
Hirdető telefonszáma: +36 70 716 9131
Honlap: -