Ház
Origó
HázOrigoval pont a központban

Szabolcs-Szatmár-Bereg megye, Nyíregyháza


 

Ingatlan adatai

Irányár: 82 000 000 Ft
Típus: ház
Kategória: eladó
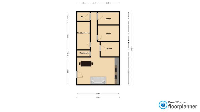
Alapterület: 190 m2
Fűtés: gáz (cirko)
Állapota: -
Szobák száma: 6
Építés éve: 2024
Szintek száma: -

Részletes leírás

Eladó egy közös udvarral egy helyrajzi számmal rendelkező ikerház.Az ingatlan csendes, nyugodt kertvárosi környezetben helyezkedik el, ugyanakkor további előnye ,hogy pár száz méteren belül buszmegálló illetve a nagy forgalmú Debreceni út frekventáltságában fekszik.Kiváló lehetőség több generáció együttélésére is. Viszont elsősorban befektetőknek tökéletes választás hiszen jelenleg is hosszútávú bérlőkkel rendelkezik.-Fűtését padlófűtés biztosítja.-Hűtéséről klíma gondoskodik.-2 x95nm az ingatlan alapterülete.-Új műanyag nyílászárókkal rendelkezik.-2024-ben fejezték be az építési munkálatokat.-Szigetelt -Parkosított udvarA hirdetésben szereplő információk a megbízótól kapott adatok alapján készültek, pontosságukért felelősséget nem vállalunk! Az alaprajz csak tájékoztató jellegű!Amennyiben vásárláshoz hitelre is szüksége van, független hitel tanácsadónk ingyenesen tud Önnek segítséget nyújtani a legjobb konstrukciók kiválasztásában és a folyamat lebonyolításában. Irodánk kereső ügyfeleinknek teljes körű szolgáltatást nyújt, szakszerű tanácsadással, energetikai tanúsítvány elkészítésével, hitelügyintézéssel és profi ügyvédi segítséggel. Abban az esetben ha az ingatlan felkeltette érdeklődését keressen bizalommal!

További adatok

Telekterület: 1 000 m2
Kert mérete: 1 000 m2
Erkély mérete: -
Felszereltség: -
Parkolás: -
Kilátás: -
Egyéb extrák:  
-

Hirdető adatai

Hirdető neve: Otthon Centrum
Kapcsolattartó: Kosztyu -Tóbiás Nikolett
Hirdető telefonszáma: +36 70 469 3361
Honlap: -