Ház
Origó
HázOrigoval pont a központban

Hajdú-Bihar megye, Egyek


 

Ingatlan adatai

Irányár: 13 000 000 Ft
Típus: ház
Kategória: eladó
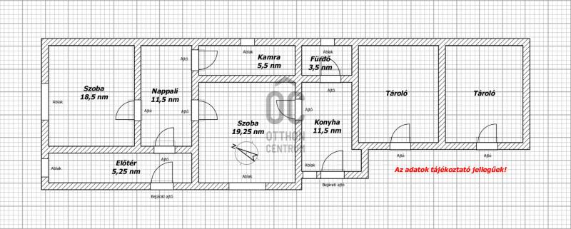
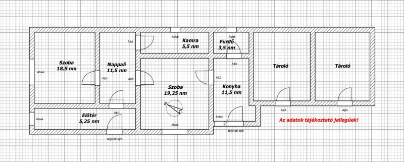
Alapterület: 75 m2
Fűtés: gáz (konvektor)
Állapota: -
Szobák száma: 2
Építés éve: 1961
Szintek száma: -

Részletes leírás

Egyeken, az élő Tisza és a Hortobágy közé ékelődve, a Tisza-tó \"fővárosától\" Tiszafüredtől 10 km-re, a település csendes, jó közlekedésű környékén, barátságos utcában családi ház ELADÓ!A településen minden, ami egy család életéhez szükséges, megtalálható /iskola, óvoda, bölcsőde, sportpálya játszótérrel,cukrászda, orvosi rendelő, gyógyszertár/, továbbá a FALUSI CSOK is elérhető, így a leendő tulajdonos ebben is gondolkodhat!Az összközműves, BETON ALAPRA ÉPÜLT!, vályog falazatú, remek szerkezeti és esztétikai állapotú, 75 nm-es családi ház, 1143 nm-es, jól körül határolt telken várja leendő tulajdonosát!A házban 2 szoba, nappali-étkező, konyha és fürdőszoba, előtér és egy kamra került kialakításra. Ebben az állapotban akár azonnal költözhető is, maximum csak egy takarító festés kell! Ideális választás családoknak, időseknek és mindazoknak, akiknek gyorsan kell, lehetőleg felújítás nélkül költözniük, pláne így a téli időszak előtt!!!A házban \"nem szükséges, de jó ha van\" kamerarendszer működik, az otthon melegéről pedig gáz-konvektorok gondoskodnak. Tartozik hozzá egy melléképület is, amelyből akár garázs is kialakítható! Az udvaron továbbá állatok tartására is alkalmas ólak és egy góré lett kiépítve! A telek méreteiből fakadóan kiválóan alkalmas lehet gyümölcsfák telepítésére, konyhakert kialakítására, de a gyerekeknek szánt játszótérnek és a családi-baráti események helyszínének, egy sütögetős-bulizós résznek is marad hely! Az ingatlan piac gyorsan változik de ÉN itt vagyok és állandó, hogy segítsek!Amennyiben felkeltettem az érdeklődését, hívjon még MA és nézzük meg együtt!Teljes körű hitel ügyintézéssel és az ingatlan adásvételéhez szükséges ügyvédi háttérrel is állok a vevőjelöltek rendelkezésére.További információért és a megtekintésért kérem, hivatkozzon a H508214-es megbízási számra!

További adatok

Telekterület: 1 143 m2
Kert mérete: 1 143 m2
Erkély mérete: -
Felszereltség: -
Parkolás: -
Kilátás: -
Egyéb extrák:  
-

Hirdető adatai

Hirdető neve: Otthon Centrum
Kapcsolattartó: Varga József István
Hirdető telefonszáma: +36 70 716 9406
Honlap: -