Ház
Origó
HázOrigoval pont a központban

Zala megye, Zalaegerszeg


 

Ingatlan adatai

Irányár: 350 000 000 Ft
Típus: kereskedelmi/ipari ingatlan
Kategória: eladó
Alapterület: 926 m2
Fűtés: -
Állapota: -
Szobák száma: -
Építés éve: -
Szintek száma: -

Részletes leírás

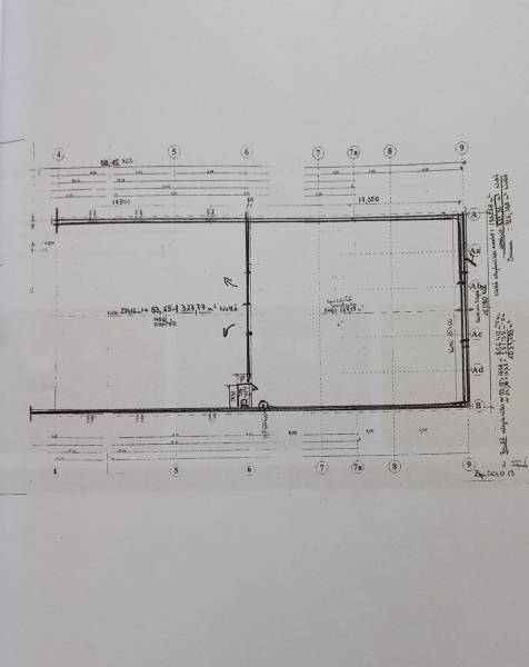
Zalaegerszeg peremén, nagyon jól megközelíthető helyen kínálunk eladásra egy 926 m²-es, kétszintes ipari csarnokot, amely egy 5108 m²-es telken helyezkedik el. Az ingatlan sokrétű felhasználási lehetőséget kínál – ideális választás logisztikai központnak, gyártóüzemnek, raktárnak vagy akár szállítmányozó cég bázisának is.Főbb jellemzők:Telek mérete: 5108 nmCsarnok alapterülete: 926 m² két szintenÉpület mérete 50mx16mFöldszint: nettó 733nm nagy belmagasságú, egybefüggő két csarnoktér 328nm és 267nm/, tárgyaló részleggel, rugalmasan alakítható, akár termelésre, tárolásra138nm szociális és kiszolgáló helyiségek: étkező, öltöző,mosdók, zuhanyzókEmelet: nettó 193nm, több elkülönített helyiség – irodák, tárgyaló, szociális blokkok, szerverszoba, mosdókTelek adottságai:Részben térkövezett udvar – ideális teherautós/kamionos közlekedéshez, rakodáshozZöld terület – bővíthetőség vagy reprezentatív kialakítás lehetőségeHasznosítási lehetőségek:Gyártás, raktározás, logisztika, szállítmányozásBefektetésre is alkalmas – kiadható nagyobb cégeknek,vállalati környezet, ipari infrastruktúra bérbeadásra előkészíthetőBiztonság: elektromos kapuval ellátott zárt területTágas telek révén bővíthető, további fejlesztésekhez is kiváló alap.Elhelyezkedés:Zalaegerszeg városszéli elhelyezkedés – gyors kijutás a főbb közlekedési utakraKönnyen elérhető személy- és teherforgalom számára egyarántRendezett jogi viszonyok, tehermentes azonnal birtoka-vehető!Ha kérdései lennének, vagy szeretné megtekinteni az ingatlant, ne habozzon kapcsolatba lépni velem. Bizalommal várom megkeresését, hogy együtt találhassuk meg az Ön számára legmegfelelőbb befektetési lehetőséget!

További adatok

Telekterület: -
Kert mérete: -
Erkély mérete: -
Felszereltség: -
Parkolás: -
Kilátás: -
Egyéb extrák:  
-

Hirdető adatai

Hirdető neve: Otthon Centrum
Kapcsolattartó: Kiss Erika
Hirdető telefonszáma: +36 70 388 5466
Honlap: -