Ház
Origó
HázOrigoval pont a központban

Budapest, I.kerület


 

Ingatlan adatai

Irányár: 109 900 000 Ft
Típus: lakás (tégla)
Kategória: eladó
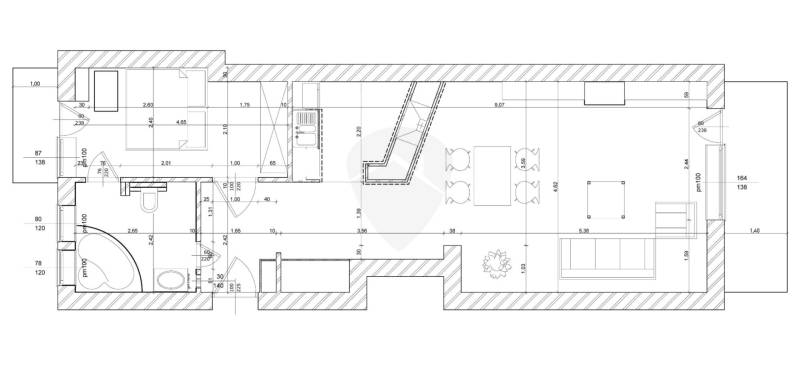
Alapterület: 69 m2
Fűtés: gáz (konvektor)
Állapota: -
Szobák száma: 2
Építés éve: 1950
Szintek száma: -

Részletes leírás

Ritka lehetőség Krisztinavárosban!Eladó egy 69 m²-es, örökpanorámás és napfényes lakás, ahonnan páratlan kilátás nyílik a Vérmezőre és a Budai Várra.A 4. emeleti otthon tágas, amerikai konyhás nappaliból, külön hálóból és modern fürdőből áll.Az 5 m²-es panorámás teraszról a tűzijáték is látható, míg a hátsó erkély csendes pihenőtér.Saját tároló is tartozik a lakáshoz.A lakás teljeskörűen felújított – minden vezeték, burkolat, gépészet új.Modern kényelmet ad a 2 wifis klíma, wifis bojler, konvektoros fűtés, biztonsági ajtó és műanyag nyílászárók.A rendezett társasházban lift is van, a parkolás az utcán kényelmesen megoldható.Előnyök:- Örökpanoráma a Vérmezőre és Budai Várra- Napos, csendes elhelyezkedés- Teljes felújítás, modern felszereltség- Saját tároló, két erkély- 1 perc villamos, 3 perc Déli pályaudvar (M2)Ez az ingatlan nemcsak egy lakás, hanem egy életérzés – budai panoráma, modern kényelem és kiváló lokáció egyben.

További adatok

Telekterület: -
Kert mérete: -
Erkély mérete: -
Felszereltség: -
Parkolás: -
Kilátás: panorámás
Egyéb extrák:  
-

Hirdető adatai

Hirdető neve: Rock Home
Kapcsolattartó: Baranyai Eszter
Hirdető telefonszáma: +36 70 467 6769
Honlap: -