Ház
Origó
HázOrigoval pont a központban

Pest megye, Kakucs


 

Ingatlan adatai

Irányár: 45 000 000 Ft
Típus: ház
Kategória: eladó
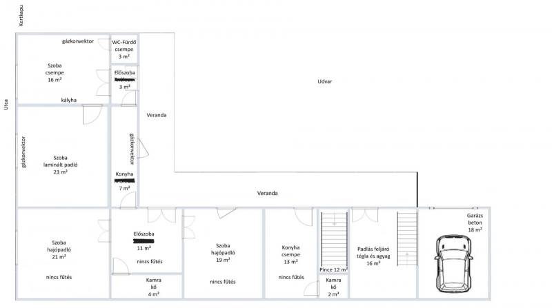
Alapterület: 125 m2
Fűtés: gáz (cirko)
Állapota: felújítást igényel
Szobák száma: 4+1
Építés éve: 1960
Szintek száma: -

Részletes leírás

 Budapesttől az M5 autópályán 40km-re található,Kakucs központi részén eladásra kínálok egy 125 nm fellújítondó 4 szobás családi házat.Az eladó sorba került ház, az 50-es években épült.Utcafrontos beépítésű a telken befelé L alakban helyezkedik el.Polgári jellegű a külső része, és a belső elosztáson is fel fedezhető.A villanyhálózat 2006-ben teljes körűen fel lett újítva.Részben vályog és tégla építésű is.A ház elosztása alkalmas 2 önálló lakás kialakítására is.Az ingatlan összközműves, ipari, éjszaki áram is van.A telek 1475nm, gazdálkodásra, állattartásra is alkalmas.A ház része a garázs is de ezen kívül egy könnyűszerkezetes tároló is.Tehermentes, nagyon rövid időn belül birtokba vehető. Jelenleg a ház kiürítésé zajlik.Befektetésre is ajánlom.CSOK,hitel, felvehető! Ha felkeltette érdeklődését kérem hívjon. O62O4OO4O26 

További adatok

Telekterület: 1 500 m2
Kert mérete: 1 500 m2
Erkély mérete: -
Felszereltség: -
Parkolás: -
Kilátás: -
Egyéb extrák:  
-

Hirdető adatai

Hirdető neve: Dabas Régió
Kapcsolattartó: Vass Erika
Hirdető telefonszáma: 06204004026
Honlap: -